Nu finns möjligheten att etablera er verksamhet i en lokal<strong> </strong>optmial för<strong> lastbilsverkstad, skadevagnsverkstad eller annan tung fordonsservice</strong>. Lokalen erbjuder de ytor och funktioner som krävs för ett effektivt och professionellt verkstadsflöde. Det finns <strong>12 markportar</strong> vilket skapar god logistik och flexibilitet för in- och utlastning. Lokalen erbjuder kontorsytor om 585 kvm fördelade på våning 1, 2 och 3 med faciliteter så som WC, pentry och omklädningsrum.
<strong>Lokalen erbjuder:</strong>
<strong>12 portar</strong> direkt kopplade till verkstadsdelen
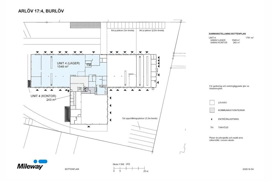
<strong>Takhöjd 6-7 meter</strong> – installation av travers möjlig
<strong>Ca 7 362 kvm inhägnad uppställningsyta</strong> – gott om plats för lastbilar, skadade fordon och personalparkering
<strong>Kontorsdel i tre plan om totalt ca 585 kvm</strong> med pentry, WC och omklädningsrum
<strong>Område</strong>
Fastigheten är belägen i <strong>Arlöv</strong>, cirka 5 km norr om centrala Malmö med direkt anslutning till E6/E20 och nära anslutning till Inre Ringvägen, E22 samt Västkustvägen. Området präglas av etablerade <strong>verkstäder, fordonsservice och lättindustri</strong> och erbjuder dessutom ett enklare serviceutbud med butiker, lunchrestauranger och kaféer. Det finns goda kollektivtrafikförbindelser med buss till centrala Malmö.
Byggår: 1975
Planlösning: Se bilder / PDF.
Omgivning
Omgivning/natur: Närhet till Spillepengens fritidsområde
Företag i närheten: Best Transport, NetonNet, Axfood Sverige, ProBike och StrongPoint Labels, Areco
Parkeringsmöjligheter/garage: Goda parkeringsmöjligheter i anslutning till fastigheten
Närservice: Enklare serviceutbud av butiker och lunchrestauranger i området
Skyltläge: Bra exponering av skyltläge ut mot Arlövsvägen