<strong>Mångsidig och inhägnad industrifastighet – lager, verkstad, showroom och kontor i Bredden</strong>
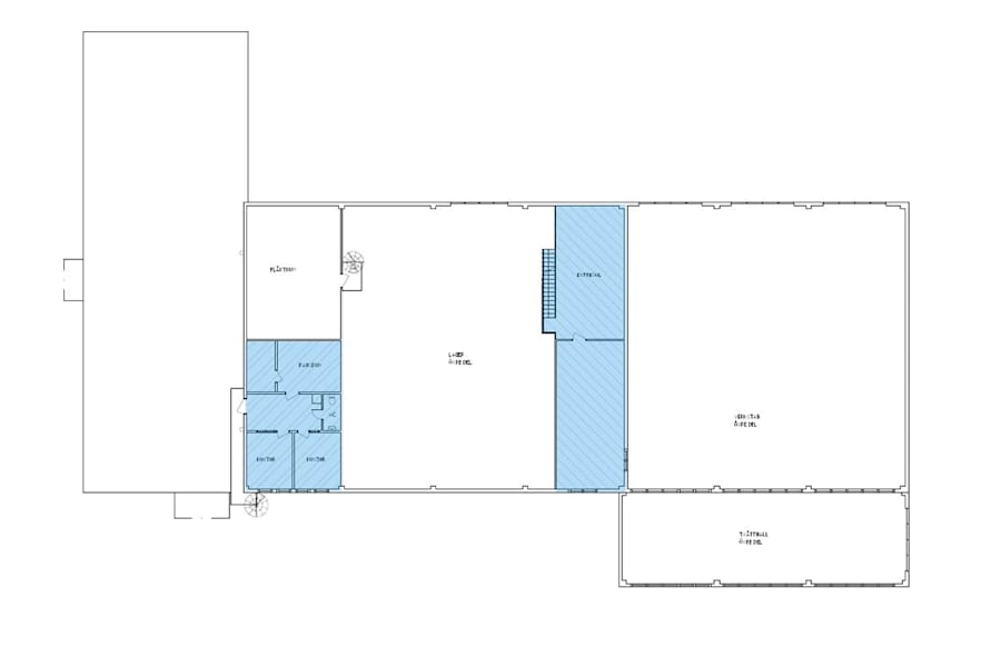
Nu finns möjligheten att hyra en flexibel och välutrustad industrifastighet om totalt 1 290 kvm – perfekt för verksamheter som söker kombinationen av lager, verkstad, tvätthall, kontor och showroom i ett attraktivt läge med smidig access från Bergkällavägen.
Fastigheten är inhägnad och erbjuder en markyta om ca 3 150 kvm med goda rangerytor samt parkering direkt utanför entrén. Lokalen har en generös takhöjd på cirka 6 meter och stora öppna ytor som möjliggör effektiv verksamhetsdrift. Fastigheten är utrustad med totalt 7 markportar, vilket ger utmärkta förutsättningar för smidig in- och utlastning.
<strong>Funktionella ytor och god tillgänglighet</strong>
Takhöjd om ca 6 meter – idealiskt för lager, verkstad eller produktion
7 markportar för flexibel och effektiv logistik
Innehåller tvätthall, butik/showroom, kontor samt personalutrymmen
Inhägnad markyta om 3 150 kvm med rangerytor och parkeringsmöjligheter
Fri access från Bergkällavägen
Komplett med RWC, omklädningsrum, matsal, kök och pentry
<strong>Strategiskt och lättillgängligt läge i Bredden</strong>
Bredden (tidigare InfraCity) är ett välkänt och väletablerat företagsområde, strategiskt beläget mellan Stockholm och Arlanda. Härifrån når du E4:an på bara ett par minuter med bil, centrala Stockholm på cirka 25 minuter och Arlanda på cirka 15 minuter. Området erbjuder en modern, flexibel och komplett företagspark med lättindustri, lager, handel och ett brett serviceutbud. Dessutom finns utmärkta kollektivtrafikförbindelser, med bussar som stannar precis utanför lokalen – vilket gör det enkelt att pendla både för anställda och besökare.
<strong>Kontakta oss för mer information eller en visning!</strong>
Byggår: 1986
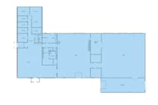
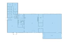
Planlösning: Se bilder/PDF.
Omgivning
Omgivning/natur: Flera grönområden finns för exempelvis en lunchpromenad eller löptur. Det planeras för ett bostadsområde i närheten, vilket kommer att göra området ännu mer levande med service dygnet runt.
Företag i närheten: Bauhaus, SATS, Tesla, Swedbank, Lambertsson, Cramo, Mekonomen
Parkeringsmöjligheter/garage: Fri parkering
Närservice: Brett serviceutbud i form av köpcenter, restauranger, matbutiker, gym, företagshälsovård, tandläkare, apotek, butiker, hotell etc.