Här erbjuds en unik hörnlokal med ett oslagbart läge på Bergsundsstrand 31.
Lokalen präglas av stora fönster längs fasaden och ett generöst skyltfönster mot vattnet som ger en fantastisk utsikt och ett otroligt ljusinsläpp. Det är sällan man hittar en lokal med en sådan närhet till vattnet, här får hela området och strandlinjen ett eget uttryck i lokalen.
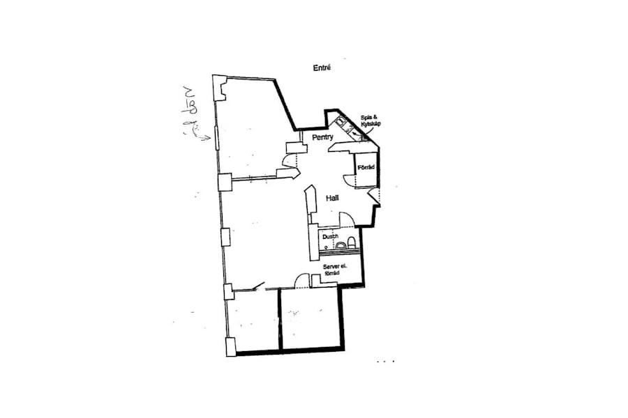
Planlösningen är flexibel och erbjuder flera rum som lätt kan anpassas efter olika typer av verksamheter. Lokalen har tidigare använts som kontor och rymmer både större arbetsytor och mindre rum för möten, telefonsamtal eller konferenser. Det finns ett mindre rum med pentry och matplats, vilket ger en hemtrevlig känsla och en praktisk arbetsmiljö. Även wc med dusch finns.I detta avtal ingår ett förråd om 10 kvm beläget i fastighetens källare.
Idag nås lokalen via trapphuset, men det finns möjlighet att skapa en egen entré direkt mot gatan, vilket öppnar upp för butik, showroom eller annan publik verksamhet. Exponeringen är fantastisk och med fönster i flera väderstreck blir lokalen ljus och inbjudande hela dagen.
Området kring Bergsunds strand är levande och dynamiskt, med ett brett utbud av restauranger, caféer och service samt goda kommunikationer precis utanför dörren. Denna lokal är perfekt för den som vill kombinera funktion, flexibilitet och en unik atmosfär med närhet till vattnet och stadens puls.
Ingen mat-café verksamhet tillåten.
Kontakta Mäklaren för visning och mer information,
Överlåtelseavgift: 285 000 kr
Video : https://vimeo.com/manage/videos/1145002889
Yta: 105 kvm
Hyra: 25 503 kr / mån exkl. moms
Fastighetsskatt: 6097 kr / mån exkl. moms
Tillträde enligt ök
Nextor Group AB
Pernilla Bjurman
pernilla@nextor.se
Telefon: 070 7809946