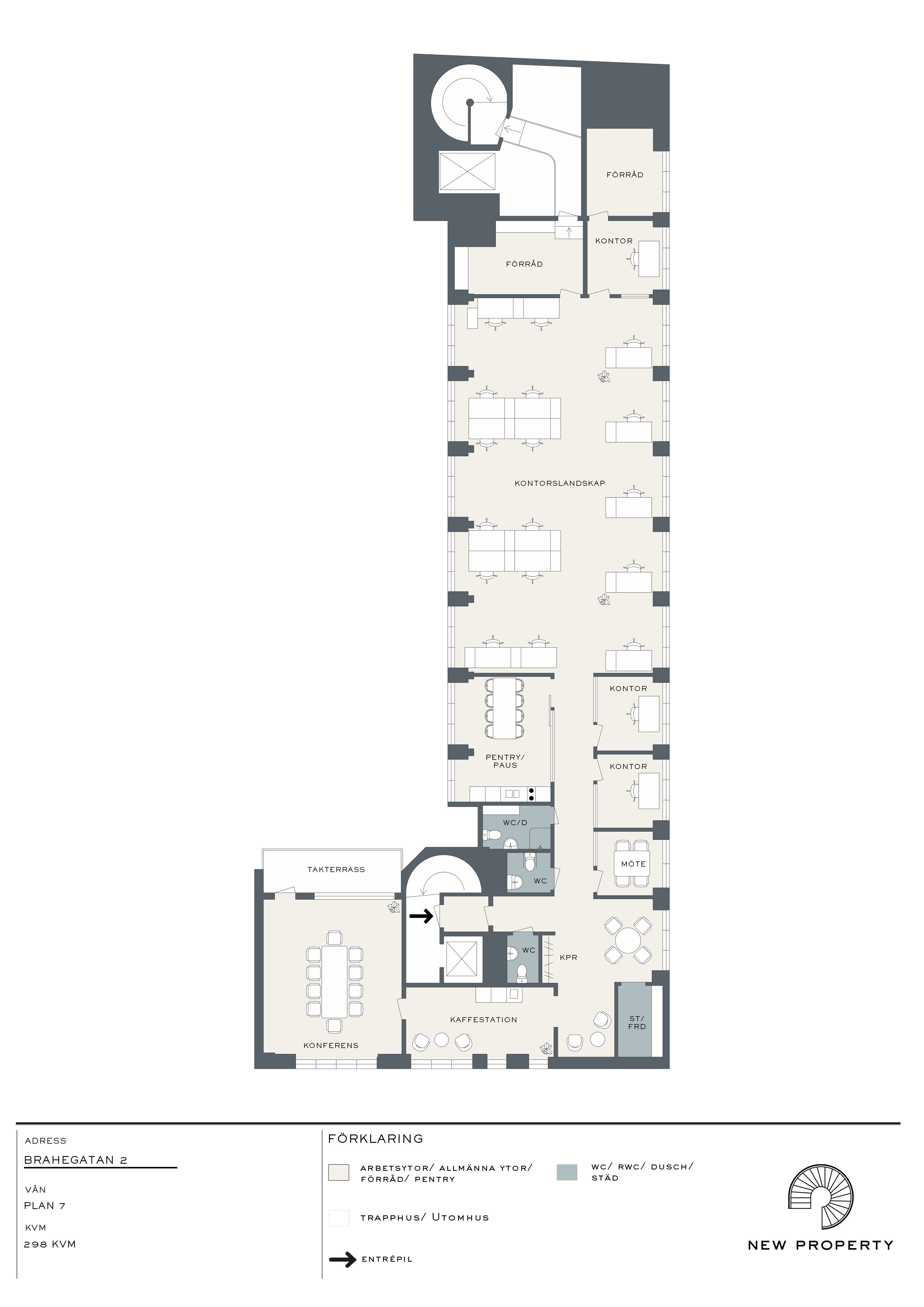
Välkommen till Brahegatan 2 där en ljus och representativ kontorslokal om 298 kvm högst upp i huset nu finns tillgänglig. Lokalen erbjuder ett öppet kontorslandskap tillsammans med flera rum för möten och fokuserat arbete, samt tillgång till balkong.
Planlösningen kompletteras med en rymlig konferensdel, pentry med matplats, separat kaffestation samt flera WC varav en med dusch. Kombinationen av sociala ytor och effektiva arbetsplatser skapar en flexibel och trivsam miljö.
Utöver lokalens kvaliteter utmärker sig fastigheten genom en hög säkerhetsstandard samt direkt tillgång till garage (Q-Park) i källaren, med smidig uppgång i huset.
Med sitt centrala läge på Östermalm, i direkt närhet till Stureplan och med bra kommunikationer runt hörnet, får ni tillgång till ett område fyllt av restauranger, caféer, butiker och service.
Välkommen på visning!
Ekonomi
Kontraktstyp: Andra hand Kontraktslängd: 2026-07-31 Uppvärmning: 97 Kyla: 98 Deposition: 3-6 mån
Bekvämligheter
Hiss, Parkering: Ja, finns garage i huset., Garage, Internet, All möjlig service i närområdet. Garage finns i fastigheten och parkering går att hyra via Aimo.
Utförande
Byggår: 1971 Renoveringsår: 2021 Antal våningar: 7 Våningsplan: 7 Ventilation: Kyla
Kommunikationer
Tunnelbana: Röd linje till Östermalmstorg Buss: Flertalet bussar stannar på Sturegatan och Birger Jarlsgatan