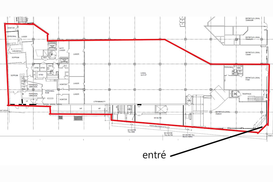
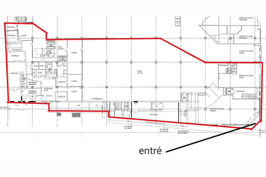
På en av Halmstads mest centrala handelsgator kan vi nu erbjuda 1400 kvm butikslokal.
På denna adress syns din verksamhet med stora skyltfönster och entré mot både Brogatan och Hantverksgatan. Invändigt består lokalen till största del av öppen butiksyta men här finns också plats för provrum, lager och personalrum. Önskas större yta finns det möjlighet att slå ihop lokalen med butikslokalen intill, efter sammanslagning blir ytan 2700 kvm (1400 kvm + 1300 kvm).
Utmed samma gata huserar verksamheter som Åhléns, Rituals, Kicks, Dressman och diverse lunchrestauranger.
Slå oss gärna en signal för mer information eller visning.
Omgivning
Omgivning/natur: Halmstad City med allt vad det innebär. Stora Torg, Lilla Torg, Nissan mm.
Företag i närheten: Systembolaget, Åhléns, Kicks, Dressman, Gallerian m.fl.
Parkeringsmöjligheter/garage: Flertalet parkeringar och parkeringshus i närområdet. Torggaraget, P-hus Radioplan, P-hus Svartmunken m.fl.
Närservice: Lokalen ligger mitt i centrum och har stadens utbud av restauranger, butiker och caféer precis utanför dörren.
Skyltläge: Fint skyltläge mot Brogatan.