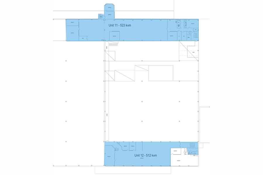
Lager-, logistik- och handelsfastighet med två lediga kontorslokaler om 512 respektive 523 kvm på plan två. Ingången ligger på baksidan av byggnaden och ytorna består av både storkontor med öppna ytor och mindre kontor i kontorsindelad planlösning. Kontoren kan anpassas efter just era behov och är utrustade med faciliteter såsom pentry, omklädningsrum, förråd och WC. Det finns parkering i anslutning till lokalerna.
Dösebacke är ett attraktivt industriområde 3 kilometer väster om centrala Kalmar. Det ligger strategiskt placerat direkt intill E22 med snabb anslutning till motorvägen och närhet till Kalmar Öland Airport. Området präglas av lättindustri, handel samt lager- och logistikverksamhet med ett enklare serviceutbud av butiker och lunchrestauranger. Det finns goda kollektivtrafikförbindelser med buss och tåg till centrala Kalmar.
Byggår: 1990
Våningsplan: 2 av 2
Planlösning: Se planritning bland bilder/PDF.
Omgivning
Företag i närheten: PostNord, Optimera, NetOnNet, Svensk Cater AB och DSV
Parkeringsmöjligheter/garage: Fri parkering
Närservice: Enklare serviceutbud av butiker och lunchrestauranger i närområdet