Välkommen till detta trevliga kontor belägen på entréplan intill Skärholmens Centrum!
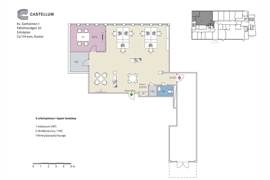
Här får ni som hyresgäst ett härligt öppet kontorslandskap med arbetsplatser för ca 6 medarbetare. Lokalen erbjuder ett mötesrum och två mindre förråd för förvaring.
Förstabilden är E-stylad (digitalt möblerad) för att ge en vision hur lokalen kan nyttjas.
Välkommen på visning!
Omgivning
Omgivning/natur: Vår fastighet i Skärholmen angränsar nära till E4/E20 med en avfart direkt in till fastigheten. Resväg till centrala Stockholm med bil är cirka 15 minuter. Mycket bra kommunikationer med tunnelbana som ligger precis vid gallerian samt många busslinjer trafikerar området runt SKHLM. Regionen kring Skärholmen är ett mycket starkt läge och byggnationen av "Förbifart Stockholm" medför ännu kortare restider.
Det händer mycket i Skärholmen med 6000 nya bostäder som planeras i närområdet vilket medför ett ytterligare stärkt Skärholmen.
Parkeringsmöjligheter/garage: Här finns det gott om garage- och parkeringsplatser att hyra.