Drömmer du om att öppna din egen verksamhet i en pulserande del av Malmö? Då har vi den perfekta platsen för dig!
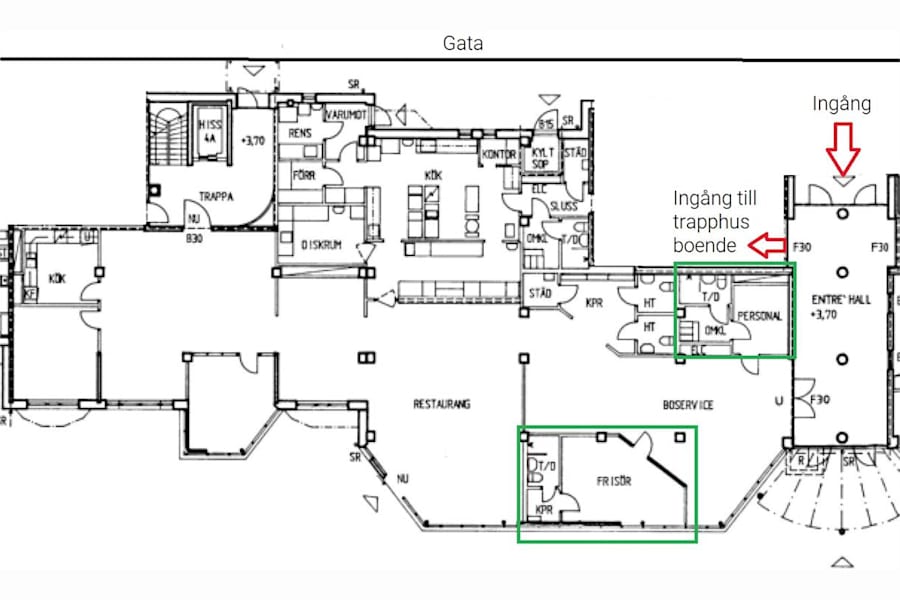
Välkommen till Fågelbacksgatan där denna fantastiska lokal på hela 287 kvadratmeter väntar på att bli ditt nya kontor eller din föreningsverksamhet. För närvarande används den som en populär restaurang, men möjligheterna är oändliga!
Varför ska du välja denna lokal?
Fullutrustat kök: Ta din restaurang eller café till nästa nivå med det redan befintliga, fullt utrustade köket. En dröm för alla entreprenörer som vill sätta sin prägel på Malmös matkultur.
Gedigen serveringsyta: Med en öppen och inbjudande serveringsyta kan du skapa en atmosfär som får kunderna att vilja komma tillbaka om och om igen. Perfekt för att arrangera föreningsmöten eller företagsutbildningar.
Gynnsam placering: Beläget inom gångavstånd från Kronprinsen köpcenter och omgivet av ett pulserande kvarter, är denna lokal en dröm för affärsverksamhet. Närheten till grönområden och Malmös centrum gör den till ett perfekt läge för att locka både lokalbefolkning och turister.
Naturligt ljus: Med stora fönster som vetter mot en lugn och grönskande innergård, får du både det bästa av stadslivet och en känsla av lugn mitt i hektiska Malmö.
Vad väntar du på? Boka din visning idag och låt din affärsdröm bli verklighet!
Övrig information
Croisette Real Estate Partner har erhållit förmedlingsuppdrag avseende lokalen som beskrivs i detta informationshäfte. Informationen är till största del inhämtad från Fastighetsägaren och eller Hyresgästen. Croisette AB och dess dotterbolag (”Croisette”) ansvarar inte för riktigheten i informationen. All information som är av relevans skall kontrolleras av en eventuell hyresgäst och varken Fastighetsägaren, Hyresgästen eller Croisette kan hållas ansvarig vid felaktigheter i detta informationshäfte.
Ekonomi
Tillträde: Enligt överenskommelse
Omgivning
Företag i närheten: Kronprinsen köpcenter, Systembolaget, Lindex, Sweet