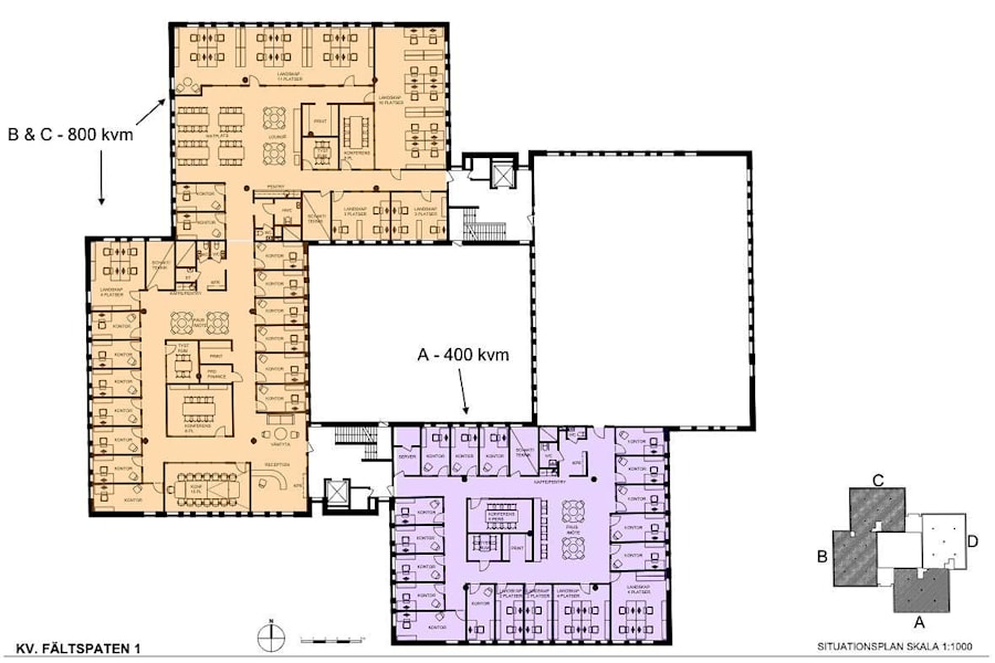
Nu har ni chansen att flytta in i moderna och ljusa lokaler i ett av Gastelyckans mest attraktiva lägen. Här står flexibilitet i fokus – välj mellan ytor på 400 kvm, 800 kvm eller hela 1 200 kvm. Vi anpassar planlösningen helt efter era unika behov för att skapa en arbetsmiljö där era medarbetare trivs.
Varför välja denna fastighet?
Prisvärt: Få stora kontorsytor till ett bra pris
Pendlingsvänligt: Strategiskt läge nära motorvägen och generös parkering.
Livskvalitet på jobbet: Grönskande innergård med grillmöjligheter för sommarens luncher.
Välkommen till en kostnadseffektiv lösning i en fastighet som växer med er!
Våningsplan: 2 av 3
Planlösning: Välplanerad lokal med flera kontorsrum, konferensrum, lounge- och matytor.
Omgivning
Företag i närheten: Aleido, Co-working via Regus (ko-working), Mormors Bageri m.m - en blandning av kontor, industri och bilhandel i närområdet
Närservice: Lunchrestaurangen Mat & Harmoni som finns i fastigheten. Det finns även co-working ytor på plan 1 i fastigheten