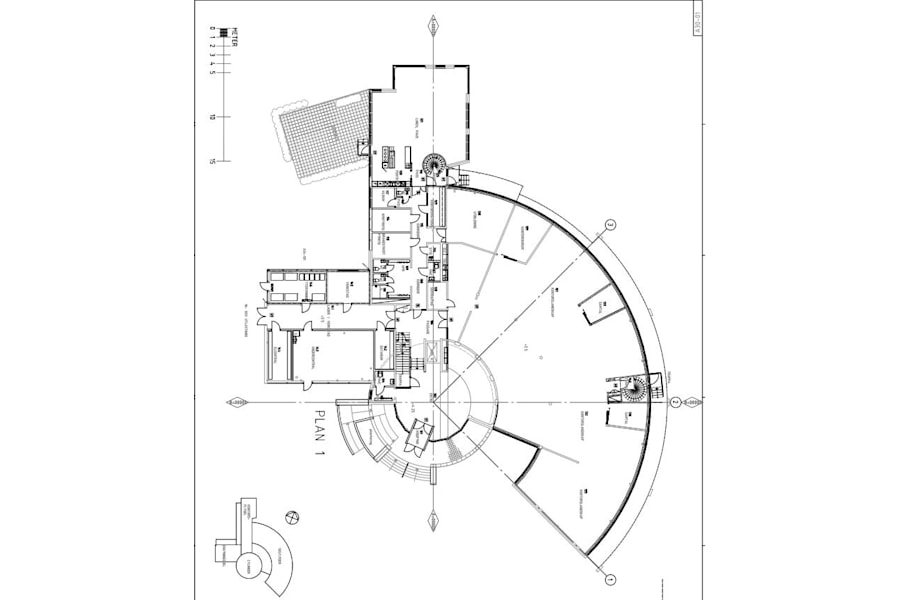
På Varvsholmen välkomnas du varje dag av entreprenörsdriva företag och här blir du del av den ständiga pulsen som slår! Kontoret återfinns på plan 1 och rymmer idag det mesta man kan önsa sig.. Planlösningen erbjuder idag ett flexibelt utbud av både öppna lösningar samt anpassade alternativ. Utöver detta bjuder Varvsholmen på bra parkeringsmöjliigheter, konferenslokaler av världsklass och en hejdundrande utsikt mot Ölandsbron!
För mer information och planlösning kontakta Croisette!
Övrig information
Croisette Real Estate Partner har erhållit förmedlingsuppdrag avseende lokalen som beskrivs i detta informationshäfte. Informationen är till största del inhämtad från Fastighetsägaren och eller Hyresgästen. Croisette AB och dess dotterbolag (”Croisette”) ansvarar inte för riktigheten i informationen. All information som är av relevans skall kontrolleras av en eventuell hyresgäst och varken Fastighetsägaren, Hyresgästen eller Croisette kan hållas ansvarig vid felaktigheter i detta informationshäfte.