Nära till utmärkta kommunikationer, trevliga restauranger och ett gediget serviceutbud!
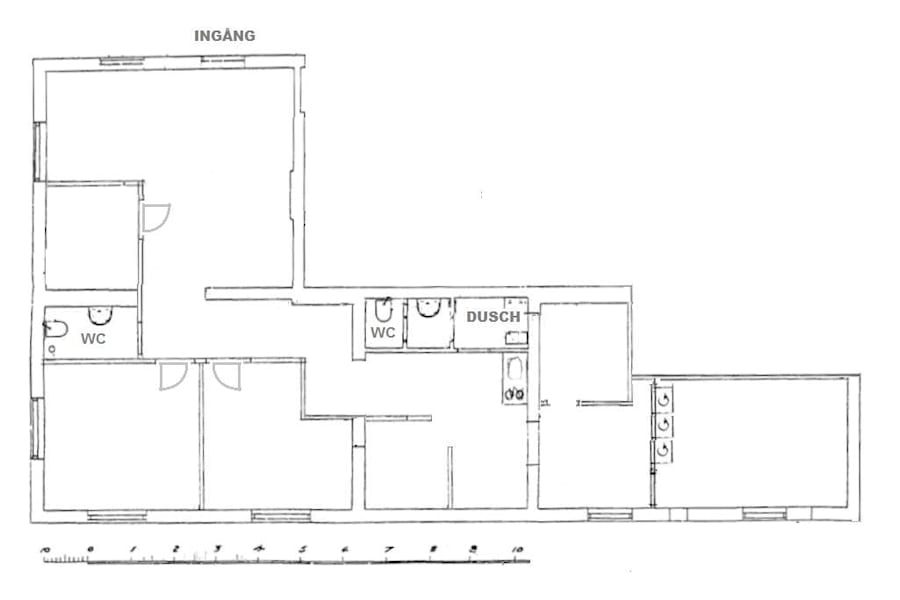
Om lokalen: Planlösningen är rumsindelad och lokalen har egen ingång. När du kliver in så möts du av en välkomnande entré i ett hörnrum. Intill finns ett fönsterlöst förråd. Rum 2 är ett hörnrum med fönster i två vädersteck. Lokalen har ytterligare fyra rum varav ett med ett enklare trinettkök. I detta rum har avskiljande väggar satts upp vilka lätt går att ta ned om så önskas. Här är även lokalens två wc samt duschrum med duschkabin placerade. De vår innersta rummen har grått klinkergolv och de övriga golven är i laminat.
Lokalen passar exempelvis som kontor eller showroom. Lokalen skulle också kunna passa för en hantverkare eller föreningsverksamhet ifall verksamheten inte blir störande för boenden i huset.
Bredband: Tele2 (före detta ComHem) finns anslutet till huset för Internetuppkoppling.
Övrig information
Föreningen har fri prövningsrätt vad gäller val av hyresgäst och verksamhet. Vänligen respektera att all kontakt och visningar sker via mäklaren enligt föreningens önskemål.
Ekonomi
Kontraktlängd: Långtidskontrakt
Kontrakttyp: Förstahandskontrakt
Tillträde: Omgående eller enligt ök.
Prisinformation: Ingen överlåtelsavgift utgår!
I hyran ingår: Värme
Hyresinformation: Hyra: Kontakta lokalförmedlaren för mer info. Ingen moms tillkommer idag.
Utförande
Byggår: 1946
Omgivning
Omgivning/natur: Det är gångavstånd till Sundbybergs Centrum med utmärkta kommunikationer samt omgivningar som utgör en mix av bostäder och ett rikt utbud av kommersiell service, butiker och restauranger. Inom gångavstånd finns Bällstaån och Marabouparken med grönska och möjlighet till utomhusträning. Idylliska omgivningar kring Gjuteribacken med viss bebyggelse från det förra sekelskiftet och en gammal kyrka. Gjuteribacken är i sig en lugn gata vad gäller biltrafik.
Parkeringsmöjligheter/garage: Du parkerar enkelt längs med gatorna i närheten av fastigheten enligt stadens tariff.
Kommunikationer
an via påfart från Frösundaleden samt E18 via påfart från Rissneleden.
Detta är även ett bra strategiskt läge för företag med många internationella besökare med närheten till båda Arlanda och Bromma flygplats. Det tar inte mer än en kvart med tunnelbanan in till Stockholms Central.