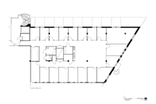
Fräscht och trevligt kontor om totalt 393 kvm på högsta våningen i en representativ byggnad som angränsar till Änggårdsbergen. Hela lokalen vidgjordes för några år sedan och är smakfullt utformad med stora sociala ytor, ljuddämpande ytskikt i form av textilmattor och undertak samt bra belysning. Glasytor och nya ytskikt i samtliga kontors- samt konferensrum gör att arbetsmiljön blir väldigt trevlig.
Ytan består av 16 enskilda kontorsrum, två konferensrum samt ett samtalsrum. Det finns även ett förråd, ett kopierings/skrivarrum samt IT-rum. Köksdelen är rymlig och erbjuder gott om matplatser. Det finns två WC, varav ett har dusch.
Lokalen nås genom trapphus som har hiss och som även går att ansluta direkt ned till byggnadens varmparkeringsgarage i källarplan.
I byggnaden finns också en gemensam ljusgård som går att använda till utställningar och events för hyresgästerna.
Omgivning
Högt beläget och angränsande till naturområdet Änggårdsbergen, är läget nära såväl till centrala Göteborg som till de stora trafiklederna Dag Hammarskjöldsleden och Söderleden. Köpcentrum 421 samt Linnéplatsen ligger på två respektive tre kilometers avstånd.
I närheten ligger Träningsverkets gym (där våra hyresgäster har 15 % rabatt) och entrén till Änggårdsbergen. På kort gångavstånd finns flera lunchrestauranger.
Kommunikationer
Busshållplats finns vid JA Wettergrens gata. Linjerna 758 och 82 trafikerar området. Kollektivtrafiken går via den närliggande knutpunkten Marklandsgatan där alla bussar och spårvagnar i området stannar.
Parkering
Garageplatser samt goda parkeringsmöjligheter, varav 36 elbilsplatser, finns på fastigheten. Cykelparkering finns i garage samt utanför byggnaden.
Övrig information
Antal rum: 19
Ekonomi
Kontrakttyp: Förstahandskontrakt
Tillträde: Det finns möjlighet till snabbt tillträde!