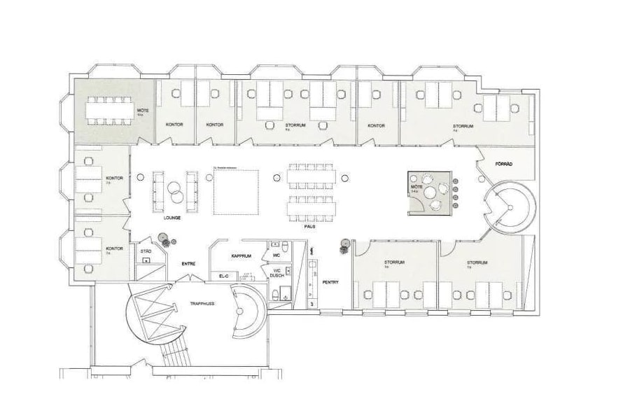
Välkommen till en ljus och trivsam kontorslokal på 357 m², belägen på våning 5 med utsikt över livliga Gustav Adolfs torg. Här får du en smart planerad arbetsmiljö som kombinerar effektivitet med trivsel mitt i centrala Helsingborg.
<strong>Lokalen erbjuder:</strong>
<strong>5 separata kontor</strong> – för fokuserat och ostört arbete
<strong>Öppet kontorslandskap</strong> – skapar samarbete och dynamik
<strong>Rymligt konferensrum</strong> – perfekt för möten, workshops och presentationer
<strong>Fullt utrustat kök</strong> – för gemensamma luncher och pauser
<strong>Toalett och badrum</strong> – med extra bekvämlighet för personalen
<strong>Tyst rum</strong> – för koncentration och reflektion
De stora fönstren släpper in rikligt med naturligt ljus och ger en inspirerande utsikt över stadens puls. Med sitt centrala läge har du nära till både butiker, restauranger och goda kommunikationer, allt som gör arbetsdagen smidigare och mer trivsam.
En perfekt lokal för det moderna kontoret som värdesätter både funktion och läge.
<strong>Kontakta oss för mer information eller för att boka en visning!</strong>
Våningsplan: 5 av 5
Omgivning
Parkeringsmöjligheter/garage: Parkering finns tillgänglig en kort promenad bort från kontoret, med timtaxa samt ett parkeringshus i närheten
Närservice: Kontorslokalen är omgiven av flera restauranger och charmiga bagerier, såsom Rosegarden och Bageri Caféet, samt det lockande Icha Mochi. Dessutom har du bekvämt nära tillgång till förtjusande shoppingbutiker.
Skyltläge: Bra