Välkommen till denna fina lokal runt hörnet från Götgatsbacken.
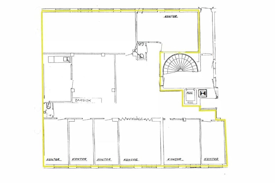
Lokalen är idag rumsindelad och har använts som utbildingslokal och lokal för terapisamtal.
Lokalen kan antingen hyras i befintligt skick alternativt kan Hyresvärden anpassa lokalen i samråd med kommande hyresgäst.
Utöver kontoret har ni som hyresgäst även tillgång till en gemensam trevlig innergård samt en terrass. I fastigehten finns även ett varmgarage samt cykelparkering.
Varmt välkommen att höra av dig om du har frågor eller vill boka en privat visning!