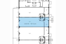
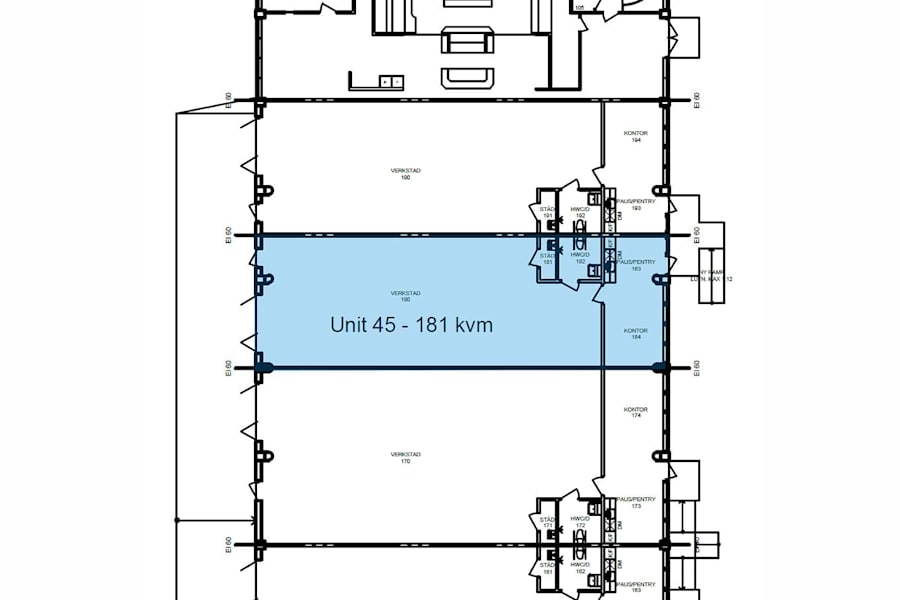
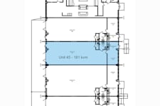
Nu finns möjligheten att hyra en väldisponerad <strong>lagerlokal med tillhörande kontor</strong> om totalt <strong>181 kvm</strong>, belägen på ett <strong>inhägnat och lättillgängligt område</strong> med fri parkering precis utanför dörren. Lokalen håller <strong>mycket bra skick</strong> och är utrustad med energibesparande<strong> LED-belysning</strong> för en effektiv och hållbar drift.
Lagerdelen om ca 155 kvm har en <strong>egen markport</strong> för smidig in- och utlastning, <strong>4 meters takhöjd</strong> och en öppen planlösning som ger stor flexibilitet i användning. Den tillhörande kontorsdelen om ca 26 kvm rymmer <strong>pentry och HWC</strong>, med <strong>stora fönster mot en grön innergård</strong> och tillgång till <strong>en gemensam terrass</strong> – en trivsam arbetsmiljö med ljusinsläpp och utsikt.
<strong>Området</strong>
Östra Hamnen är ett utbrett och väletablerat industriområde på centralt läge vid stadens norra infartsleder, <strong>endast 3 kilometer norr om centrala Malmö</strong>. Här finns goda transportförbindelser via <strong>Västkustvägen vidare till Inre Ringvägen, E6/E20 och E22</strong>. Området präglas av lättindustri samt lager- och logistikverksamheter och det erbjuds ett enklare serviceutbud av handel och lunchrestauranger. Det finns <strong>goda kollektivtrafikförbindelser</strong> med buss till centrala Malmö.
<strong>Kontakta oss gärna för mer information eller visning! </strong>
Byggår: 1962
Våningsplan: 1
Planlösning: Se planritning bland bilder.
Omgivning
Företag i närheten: Cargobike of Sweden, Mechanum, INR Försäljning Sverige AB, Exakta Print AB och Bring
Parkeringsmöjligheter/garage: Fri parkering
Närservice: Enklare serviceutbud av handel och lunchrestauranger i närområdet