Inhängnad fastighet bestående av två huskroppar.
<b>BESKRIVNING</b>
<strong>Huskropp 1 - 924 m2</strong>
Har använts som bussgarage/verkstad. Byggnaden har 5 portar, omklädningsrum/WC/dusch, kontor, pentry/kök med uteplats, entresolplan om ca 190 m2 som har nyttjats till däckförvaring. Takhöjd + 7 m
<strong>Huskropp 2 - 270-550 m2</strong>
Byggnad i två plan med kontor, omklädningsrum (dam/herr), vilorum, kök m,m. Här finns även en övernattningslägenhet på nedersta våningsplanet. Här kan man hyra ett eller två våningsplan tillsammans med huskropp 1.
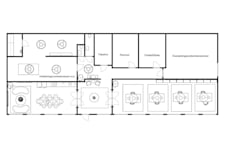
I dagsläget finns inga invändiga bilder på kontorsbyggnaden men planritningar återfinns bland bilderna. Den möblerade 3D-renderingen är endast för att visa på möjligheter.
<strong>Lännavägen 64</strong>
Läget erbjuder en strategisk placering med närhet till stora trafikleder, vilket gör området optimalt för företag inom lager, logistik och kontor. Den smidiga anslutningen till E4 och andra huvudleder underlättar effektiv distribution i hela Stockholmsregionen, medan goda kommunikationer med kollektivtrafiken ger enkel pendling för anställda – Stockholm City nås på cirka 20 minuter. Omgivningarna präglas av grönområden som skapar en trivsam arbetsmiljö, och närheten till restauranger, dagligvaruhandel och serviceinrättningar bidrar till en bekväm arbetsvardag. Med synlighet längs en väletablerad trafikled och en perfekt balans mellan tillgänglighet, exponering och arbetsro är detta ett utmärkt val för företag som vill växa i en dynamisk och välansluten miljö.
<b>LOCUS ADVICE </b>
Locus Advice är ett fastighetskonsultbolag med fokus på kommersiella fastigheter och lokaler.
Vi arbetar med
Genom etablerade samarbeten med både stora och små fastighetsägare har vi tillgång till ett stort utbud av lokaler utöver vad vi kan marknadsföra i vår egen regi. Via dessa samarbeten kan vi med stor sannolikhet hjälpa er hitta den lokal ni söker efter.