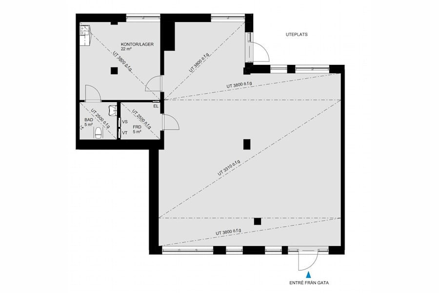
Här finns möjlighet att hyra en fin lokal på bottenplan om 158kvm i attraktiva Munkebäck. Lokalen är i väldigt fint skick med stora glaspartier längst med vägen och har förutsättnigar för olika typer av verksamheter.
I hyran ingår värme och möjlighet till garage finns.
Lokalen har en egen uteplats mot den gemensamma innergården.
Utanför lokalen har du tillgång till parkeringar och närhet till det mesta.
Planlösning: Öppen planlösning med god potential.
Omgivning
Omgivning/natur: Här sitter du med närhet till fina grönområden att röra sig omkring. Lokalen har en egen uteplats som du kan nyttja på ett fridfullt sätt mot den gemensamma innergården.
Företag i närheten: Coop Konsum, Ica Kvantum, Power, Circle K, Max, Nordsjö, Sats m.fl...
Parkeringsmöjligheter/garage: Utanför lokalen finns det gott om parkeringsplatser. Möjlighet till garage finns och ligger under marken.
Närservice: I närheten av lokalen finns ett stort utbud av olika typer av service - lunchrestauranger, frisörsalonger, livsmedelsbutiker m.fl...
Skyltläge: Mycket bra skyltläge.