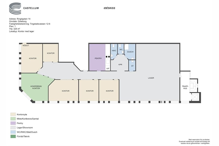
Lokalen erbjuder idag ett kontor med plocklager/showroom som ligger längst med Ringögatan, vilket ger bra skyltmöjligheter på populära Ringön.
Trevlig lokal med mycket glaspartier som ger ett bra ljusinsläpp i hela lokalen, oavsett om du står i lagret eller sitter på kontoret.
Lokalen har en egen entré i markplan med en egen hiss som går direkt från entrén till er lokal.
Vi kan erbjuda anpassningar för att få en optimal planlösning för ert företag.
Önskar du mer öppna ytor för smidigare lagerförvaring eller kanske en butiksyta/showroom? Inga problem. Vi är öppna för förslag för att kunna erbjuda er den bästa lösningen för just ert företag. Vid hyresgästanpassningar försöker vi alltid ha hållbarhet och återbruk i åtanke.
Det är enkelt att ta sig hit med allmänna kommunikationer och med bil. Parkeringar finns vid fastigheten.
Välkommen att kontakta oss för mer info och visning!
Våningsplan: 1
Omgivning
Omgivning/natur: Ringön i Göteborg är ett område där det till stor del erbjuds industrier och kommersiella verksamheter och är känt för sin rustika charm och atmosfär.
Området ligger väster om Göta älv, nära centrala Göteborg, strax intill de stora lederna, vilket gör det både strategiskt och lättillgängligt för företag.
Historiskt sett har Ringön varit ett industriområde med stor betydelse för staden, där lager, fabriker och olika typer av produktion har dominerat. Idag finns här fortfarande många industrier och hantverksföretag, men även ett växande antal kreativa företag, så som designstudior, ateljéer och nya verksamheter som bidrar till en mer blandad karaktär i området. Det finns även riktigt bra restauranger och caféer i området.
En av de stora fördelarna med Ringön är dess närhet till centrala Göteborg. Området ligger bara ett stenkast från stadens puls, vilket gör att det är lätt att ta sig in till exempelvis Nordstan, Göteborgs största shoppingcenter, eller till de centrala affärsdistrikten på bara några minuter.
För att sammanfatta Ringön, så är det ett område med både industriell charm och modern utveckling, vilket gör det intressant för företag. Med sin närhet till Göteborgs centrum och goda kommunikationer är det ett område med stor potential för framtida utveckling.
Parkeringsmöjligheter/garage: På fastigheten erbjuds det gott om parkeringsmöjligheter, vilket gör det både enkelt och bekvämt för både företag och besökare. Det finns även möjlighet till parkeringsplatser med elbilsladdare för dig som vill tanka grönt.
För dig som reser kollektivt finns närmsta hållplats vid Frihamnen som du når med ca 10–15 minuters gångpromenad.
Buss 47 går över hela Ringön och närmsta hållplatsen är ca 50 meter från lokalen.
Hållplatsen trafikeras av spårvagnslinjerna 5, 6, 10 och 13, vilket ger goda förbindelser till centrala Göteborg och andra stadsdelar.
Närservice: Här är en levande stadsdel med flertalet kaféer och populära matställen. Här kan du hitta små lunchhak och specialiserade matställen.
Ringön har också blivit en plats för kreativa verksamheter, och här finns ateljéer, galleriutrymmen och mindre eventlokaler. Väl värt ett besök!