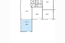
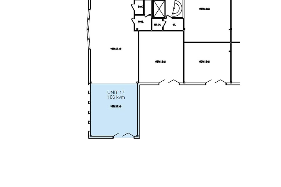
Nu finns möjlighet att hyra en nyrenoverad och flexibel lagerlokal om cirka 106 kvm i markplan med tillhörande markyta om hela 250 kvm, perfekt för verksamheter inom lager, verkstad eller annan industriverksamhet som behöver både effektiva inomhusytor och generös uppställningsyta.
Lokalen har en takhöjd om cirka 3,5 meter och är utrustad med två markportar som möjliggör smidig in- och utlastning samt ett effektivt flöde i verksamheten. Den tillhörande markytan om 250 kvm ligger i direkt anslutning till lokalen och lämpar sig väl för uppställning, extern lagring eller parkering.
Invändigt finns ett nybyggt entresolplan om cirka 50 kvm med kontor, WC och pentry, vilket skapar en komplett lösning för både administration och personal. Lokalen totalrenoverades i januari 2025 med nya ytskikt och modern LED-belysning som ger en ljus och energieffektiv arbetsmiljö.
Fastigheten är belägen inom inhägnat område med automatisk grind, vilket ger en trygg och lättillgänglig arbetsmiljö.
Område
Jordbro ligger cirka 25 kilometer söder om centrala Stockholm, på ett fantastiskt läge med nära anslutning till riksväg 73. Riksväg 73 går från Nynäshamn genom Jordbro och sträcker sig till centrala Stockholm, där ett nätverk av trafikleder över hela landet knyts samman. Fastigheten är belägen i Jordbro Företagspark som är ett av Stockholmsregionens största och mest expansiva industriområden. Området präglas av industri- och logistikverksamheter och hel del handel med stora aktörer. Serviceutbud med ett flertal restauranger, matvarubutik, gym och apotek finns i närområdet. Det finns goda kollektivtrafikförbindelser med buss och pendel till Stockholm med omnejd.
Byggår: 1991
Våningsplan: 1 av 2
Planlösning: Se bland bilder/PDF.
Omgivning
Företag i närheten: Coca-Cola, Bring, TD TechData, Frigoscandia, Dagab, Åhléns och Green Cargo
Parkeringsmöjligheter/garage: Parkeringsplatser i anslutning till lokalen
Närservice: Lokalt serviceutbud med bland annat lunchrestauranger, gym och apotek