<strong>Lokalen lämpar sig mycket väl för de flesta vårdverksamheter och är tillgänglighetsanpassad!
</strong><strong>
Wonna Tower är en Kungsholmens arkitektoniskt sett mest spännande byggnader bestående av 15 våningar ovan mark. För den som vill avnjuta utsikten över staden i solsken finns husets bokningsbara takterrass med utekök att tillgå. Mitt emot takterrassen finns den fantastiska konferenslokalen och i källaren ett spa med IR-bastu, träningsmaskiner och relax – bokningsbara för husets hyresgäster! Det finns planer på en frukost- och lunchrestaurang i husets entréplan.
</strong>
<strong>Fastigheten
</strong>Huvudentrén har anpassats med exklusiva materialval och armaturer, pelare med gulddekorer, stuckatur samt bänkar där man kan slå sig ner. Tre hissar försörjer huset och även hisskorgarna har anpassats med exklusiva ytskikt. Cykelrum och godkänt skyddsrum finns samt cykelställ utanför huvudentrén.
<strong>
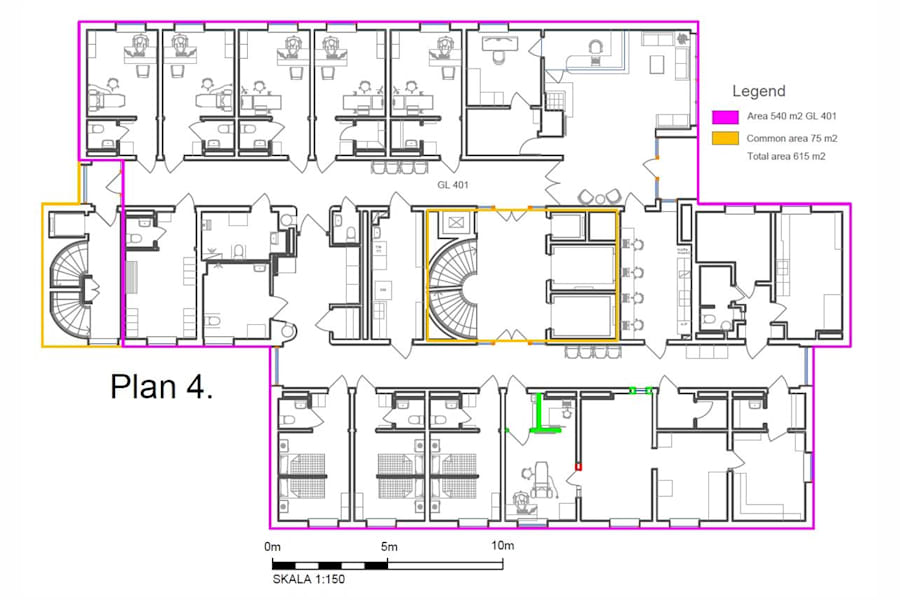
Om lokalen</strong>
Lokalen är belägen på våningsplan 4 i huset. Lokalen är idag anpassad för vårdverksamhet och den tidigare hyresgästen har utfört enklare operationer med lokalbedövning i lokalen.
Planlösningen är rumsindelad. Den ena sidan av lokalen utgörs idag av ett stort rum som idag nyttjas som väntrum och reception med en vacker öppen spis och balkong. Vägg i vägg med detta rum finns ett samtalsrum och ett mindre kontor för 2 arbetsplatser. På denna sida finns även 6 stycken behandlingsrum med wc i varje rum samt en större tillgänglighetsanpassad WC med dusch samt en mindre WC i korridorsytan. Lokalens pentry/personalrum är placerat i lokalens mitt. Den andra sidan av lokalen nyttjas idag som operationsdel med ett mindre kontor för ca 3 personer, 3 vilorum för två personer vardera med WC, en operationssal samt ett laboratoriumrum, förråd, steril samt ett litet minikök i korridoren. Se planritningen i annonsen.
Lokalen passar exempelvis för öppenvård, skönhetsvård och kirurgi då den har ett operationsrum, vilorum, laboratorium och rum för steril.
Hyresvärden är öppen för att anpassa lokalen efter ny hyresgästs önskemål.
Lokalen har potential att bli mottagningslokalen utöver det vanliga där personalen definitivt kommer att trivas!
<strong>Uppvärmning: </strong>Fjärrvärme. Ventilation: Mekanisk ventilation (FTX).
<strong>
Bredband:</strong> Fiberanslutning finns i huset.
Byggår: 1955
Våningsplan: 4
Omgivning
Omgivning/natur: För den aktive finns, Stadshagens IP och Kristinebergs IP med grus- och gräsplaner samt löparbanor och motionsslinga. I närområdet finns också gott om trevliga promenadstråk längs efter Branhusviken, Karlbergs- och Ulvsundasjöns glittrande vatten.
Företag i närheten: I närheten är bland andra Electrolux och Sankt Görans sjukhus.
Parkeringsmöjligheter/garage: Besöksparkering finns på fastigheten och parkeringsmöjligheter på angränsande gator enligt stadens tariff samt i kringliggande parkeringshus. Lastkaj för transporter finns.
Närservice: I närområdet finns både restauranger, bank, post, och all tänkbar service. Inom gångavstånd finns exempelvis Fridhemsplan och Västermalmsgallerian med all tänkbar service. Många bra och stora matbutiker vid Fridhemsplan samt populära Ica Maxi på Lindhagensgatan 118. Det är även gångavstånd till flera gym för den träningsbenägne.