Nu finns möjlighet att hyra en välskött lagerlokal om totalt 4 060 kvm, inklusive 457 kvm kontor, i en modern byggnad från 2007.
<strong>Lagerdelen:</strong>
<strong>Kontorsytor och faciliteter:</strong>
<strong>Fastigheten:</strong>
Välkommen till en fastighet som kombinerar funktion och flexibilitet för både lager och kontor – ett utmärkt val för verksamheter med höga krav på logistik och personalutrymmen.
<strong>Optimalt läge: </strong>
Stockholm Nord Logistikcenter är centralt beläget i Rosersberg, endast 30 km norr om centrala Stockholm och strax söder om Arlanda flygplats. Dess närhet till E4, den viktigaste transportlänken till och från Stockholm, gör den till en idealisk bas för ditt logistikföretag. Lunchrestauranger och serviceutbud finns lättillgängligt i närområdet. Buss- och tågförbindelser till Stockholm och dess omgivningar finns tillgängliga, vilket gör pendlingen smidig för alla medarbetare.
Byggår: 2007
Våningsplan: 1 av 2
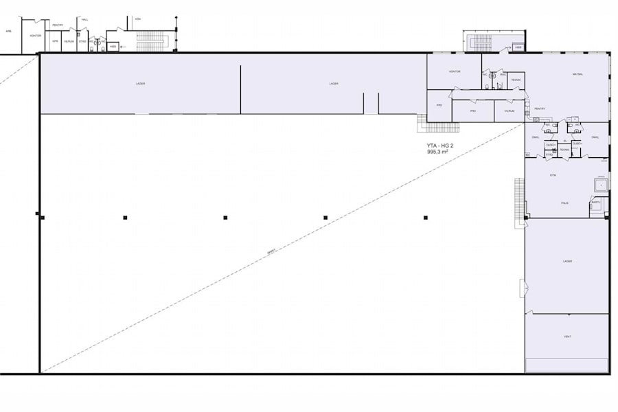
Planlösning: Se bifogad PDF-ritning eller bland bilder.
Omgivning
Omgivning/natur: Stockholm Nord Logistikcenter är centralt beläget i Rosersberg, endast 30 kilometer norr om centrala Stockholm och strax söder om Arlanda flygplats. Dess närhet till E4, den viktigaste transportlänken till och från Stockholm, gör den till en idealisk bas för ditt logistikföretag. Lunchrestauranger och serviceutbud finns lättillgängligt i närområdet. Buss- och tågförbindelser till Stockholm och dess omgivningar finns tillgängliga, vilket gör pendlingen smidig för alla medarbetare.
Företag i närheten: DHL, PostNord, Optimera, Sellpy, Lidl och Stena Recycling AB
Parkeringsmöjligheter/garage: Goda parkeringsmöjligheter
Närservice: Enklare serviceutbud med lunchrestauranger finns i närområdet