Fin lokal på bästa läge
Då vår befintliga hyresgäst väljer att flytta till andra lokaler så finns det nu möjlighet för ditt företag att ettablera sig på bästa läge i Sege Industriområde. Här har du nära till ringvägarna både mot Trelleborg, Malmö, Lund & Helsingborg och dessutom finns det god komunikation med kollektivtrafik för era anställda.
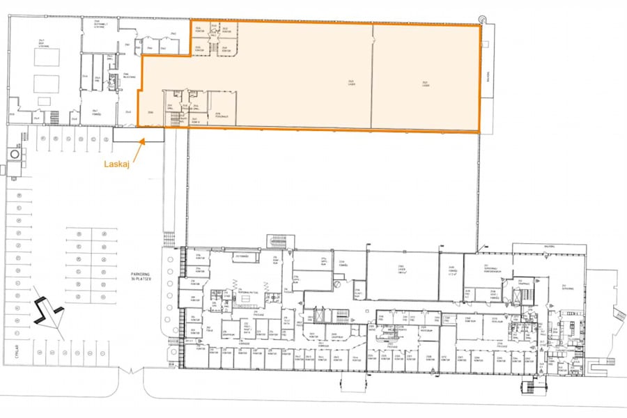
<strong>Kontoret </strong>
Lokalen har en mindre avdelning med 4 st rum som passar som lagerkontor eller annan administration för ert företag. Lokalen har även omklädningsrum till lagerpersonal och ett stort lunchrum så både administrativ personal och lagerarbetare får plats att luncha tillsammans.
<strong>Lagret</strong>
Lagret är en stor öppen yta med fönster som ger ett trevligt ljusinsläpp. Till lagret hör en port med lastkaj och passar bra att lagra alla typer av gods.
<strong>Parkering</strong>
Till lokalen finns parkering i direkt anslutning till entrén med flertalet platser för kunder och anställda. Önskar möjlighet för el-bilsladdning så är det inga problem att ordna detta till ert företag.
Byggår: 1965
Planlösning: Lager, logistik och kontorsytor under samma tak.
Omgivning
Företag i närheten: Mellon Supplies, Röda Oliven Restaurang, NISA Utbildning, Snabbgross, Netonnet, Ettiketto, Swedish Logistic Property.
Parkeringsmöjligheter/garage: Ca 40-50 p-platser
Närservice: Röda Oliven Restaurang, Snabbgross, Burlöv Center.
Skyltläge: Ja