Nu finns möjlighet att hyra en mycket fin kontorslokal belägen i en representativ och nyligen renoverad fastighet med tidstypisk karaktär.
Här får ni en underbar, välplanerad lokal som består av sex rymliga och ljusa rum med fina ytskikt. Vissa av rummen har fantastisk utsikt mot Tyska Kyrkan vilket ytterligare bidrar till en trivsam arbetsmiljö.
Två påkostade wc varav den har dusch. Genomgående mycket gott skick.
Påkostat kök med god maskinell utrustning och gott om plats för matbord och stolar.
Lokalen är genomgående i mycket gott skick samt är utrustad med en modern ventilationsanläggning med viss kyleffekt som ger ett bra inomhusklimat.
Fastigheten ägs av en seriös och långsiktig fastighetsägare som månar om sina hyresgäster.
Denna lokal passar utmärkt för företaget som söker en exklusiv och lugn arbetsmiljö med närhet till citypuls, restauranger och kommunikationer.
Vänligen kontakta Camilla Göransson 072-743 06 22 för mer information och visning.
Våningsplan: 2
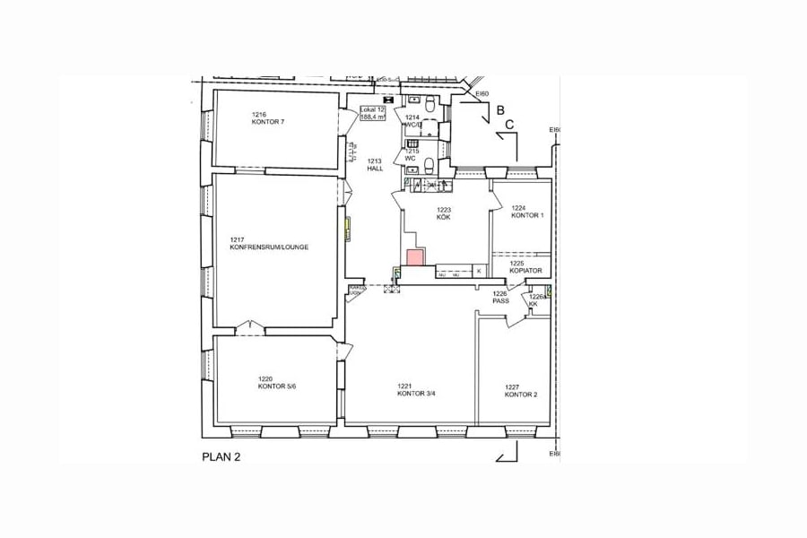
Planlösning: Välkomnande hall med plats för klädhängare. Direkt till höger finns ett rymligt rum samt ytterligare ett oerhört rymligt rum som rymmer många arbetsplatser. På motsatt sida i hallen finns två wc, varav den ena med dusch. Här finns även det rymliga köket. Längst ner i lokalen finns ett fantastiskt hörnrum med ljusinsläpp från två håll samt utsikt mot Tyska kyrkan. Intill detta rum finns ytterligare ett stort rum med vacker utsikt. I denna bakre del av lokalen finns även ett rum med utsikt mot Tyska kyrkan samt ett rum som har utsikt in mot gården.
Omgivning
Närservice: Butiker och restauranger finns i den absoluta närheten.