På Torsgatan 26, bara en kort promenad från Centralstationen och Arlanda Express, ligger ett av Stockholms mest välkända landmärken – den vackra Jugendfastigheten som uppfördes för Stockholms Gasverk år 1906.
Här möts historia och framtid i ett nyrenoverat och yteffektivt kontor där modern teknik smälter samman med varsamt bevarade sekelskiftsdetaljer.
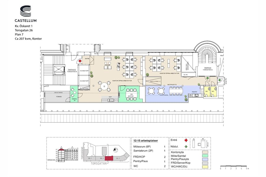
Denna trivsamma kontorslokal om ca 207 kvm erbjuder en öppen och funktionell planlösning med cirka 15 arbetsplatser.
Välkommen att upptäcka ett kontor där charmigt sekelskifte möter ett modernt och effektivt arbetsflöde.
Våningsplan: 7
Planlösning: Lokalen erbjuder fina och öppna kontorsytor för cirka 15 arbetsplatser. Här finns även en trevlig matplats i direkt anslutning till pentryt. Perfekt för företag som vill kombinera representativa ytor med ett effektivt och modernt arbetsflöde.
Omgivning
Omgivning/natur: Norra Bangården – en levande knutpunkt för framtidens arbetsliv
Precis där Vasastan, Norrmalm och Kungsholmen möts växer ett nytt cityläge fram – Norra Bangården. Ett område fullt av kontraster, där industrihistorien möter modern arkitektur och framtidens arbetsplatser tar form. Här finns innerstadens hela utbud inom räckhåll, med bara några minuter till Stockholms centralstation, tunnelbana, pendeltåg, flygbussar och cykelstråk.
Norra Bangården är en plats i rörelse – med ett växande utbud av caféer, restauranger, hotell och kulturella upplevelser. Här finns plats för både fokus och flöde, med grönområden att landa i under arbetsdagen och ett stadsliv som alltid är nära. Det är en del av city som ännu känns lite hemlig – men inte så länge till.
Det här är en plats att ta del av, bjuda in till och längta tillbaka till.
Parkeringsmöjligheter/garage: På Torsgatan 12 finns ett garage för både besökande och reserverade garageplatser, med eller utan el. Är du intresserad kontakta Aimo Park på telefonnummer 0771-96 90 00.
Närservice: Behöver du mötesrum eller en flexibel arbetsplats för en dag? Hyr mötesrum eller köp ett dagspass hos coworkingbolaget United Spaces, som ligger i entréplanet på Torsgatan 26. Här erbjuds både service och mötesrum av hög kvalitet.
På de två grönskande innergårdarna kan du varva ner eller ägna dig åt träning. Förutom en padelbana, som bokas via court22.se, finns även ett utegym för den som föredrar andra träningsformer. Efter träningen kan du slå dig ner vid vårt utekontor – ett komplett kontorsutrymme under bar himmel, utrustat med WiFi, eluttag och ergonomiska arbetsplatser.