Söker du en rymlig och ljus lokal med hög synlighet och ett attraktivt läge i centrala Trelleborg? Nu har du chansen! På Algatan 19, omgiven av välkända grannar som Normal, Systrar & Bröder och Smarteyes, finns en välplanerad och flexibel lokal på 150 kvm som passar perfekt för handel eller kontor.
Just nu erbjuds en hyresrabatt på 3 månadshyror för avtal som skrivs innan årsskiftet.
Lokalen erbjuder:
Kontakta oss för en visning!
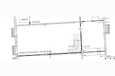
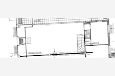
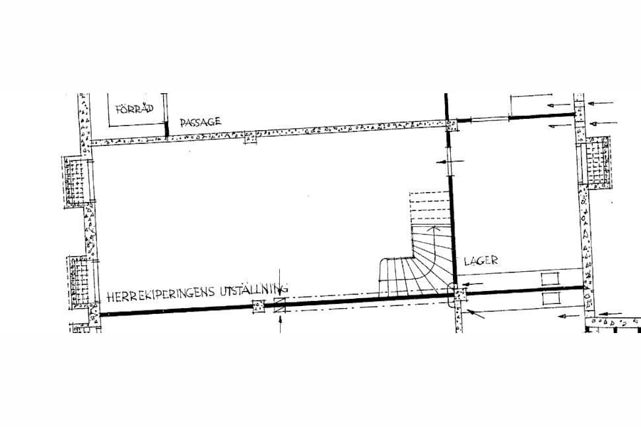
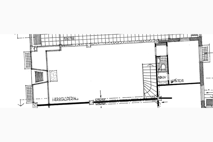
Ytor/Planlösning
Handelslokal i två plan.
Övrig information
Croisette Real Estate Partner har erhållit förmedlingsuppdrag avseende lokalen som beskrivs i detta informationshäfte. Informationen är till största del inhämtad från Fastighetsägaren och eller Hyresgästen. Croisette AB och dess dotterbolag (”Croisette”) ansvarar inte för riktigheten i informationen. All information som är av relevans skall kontrolleras av en eventuell hyresgäst och varken Fastighetsägaren, Hyresgästen eller Croisette kan hållas ansvarig vid felaktigheter i detta informationshäfte.
Ekonomi
Tillträde: Efter överenskommelse
Omgivning
Omgivning/natur: Nära till hav och natur.
Företag i närheten: Normal, Systrar & Bröder, SmartEyes med flera.