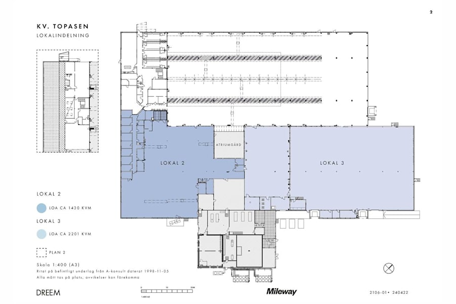
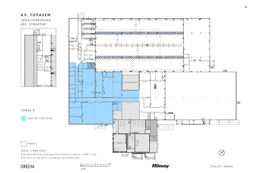
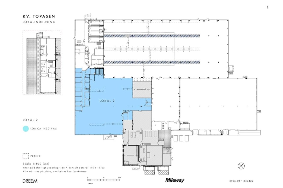
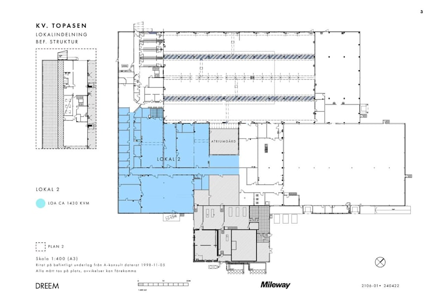
Nu erbjuds möjlighet att hyra anpassningsbara industrilokaler för produktion, lager och kontor på Väla Södra, ett attraktivt industriområde i Helsingborg. Lokalerna har stora utvecklingsmöjligheter och kan enkelt anpassas för en mängd olika verksamheter, såsom bilhall, verkstad eller B2B-handel, med möjlighet att skräddarsy ytorna helt efter era specifika behov. Lokalerna om 1 430 kvm och 3 617 kvm kan hyras som en enhet eller delas upp för två hyresgäster. Det går att utöka ytorna med ytterligare ca 6 000 kvm.
Lokalens höjdpunkter
Strategiskt läge: Väla Södra är ett attraktivt industriområde med industri-, lager- och kontorsfastigheter beläget 5 kilometer norr om centrala Helsingborg. Området ligger i direkt anslutning till de viktiga transportlänkarna E4 och E6. Väla köpcentrum erbjuder ett brett serviceutbud med butiker och restauranger. Det finns goda kollektivtrafikförbindelser med buss till centrala Helsingborg.
Ytor/Planlösning
Se planritning bland bilder eller ladda ned PDF.
Övrig information
Miljöcertifiering: GreenBuilding
Ekonomi
Kontraktlängd: Förhandlingsbart
Kontrakttyp: Förstahandskontrakt
Tillträde: Omgående
Utförande
Fastighetsbeteckning: Topasen 1
Byggår: 1989
Våningsplan: 1 av 1
Takhöjd: 7 m
Omgivning
Företag i närheten: IKEA, Mediamarkt, Väla Centrum, Hornbach och Biltema
Parkeringsmöjligheter/garage: Gott om parkeringsplatser på fastigheten, totalt 75 st