På Avestagatan 29, nära Spånga pendeltågsstation, finns denna flexibla lokal, fördelad på två plan med möjligheter för anpassning efter just ert verksamhetsbehov.
Lokalen lämpar sig utmärkt för vuxenutbildning eller vårdverksamhet, som till exempel rehabilitering. Byggnadens stora fönster och ljusgård skapar en ljus och inbjudande arbetsmiljö.
Observera att de interiöra bilderna i annonsen är E-stylade (digitalt möblerade) för att illustrera hur lokalen kan användas.
Välkommen på visning!
Övrig information
Denna kontorsbyggnad uppfördes redan 1950, men genomgick en omfattande ombyggnad 1990. Fastigheten består av kontor och lager i olika plan. Användningsområdet är idag som kontor, utbildning, vård & omsorg samt viss produktion.
Ekonomi
Tillträde: Enligt överenskommelse.
Utförande
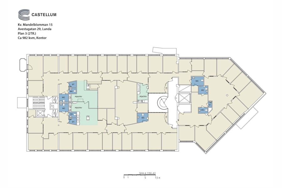
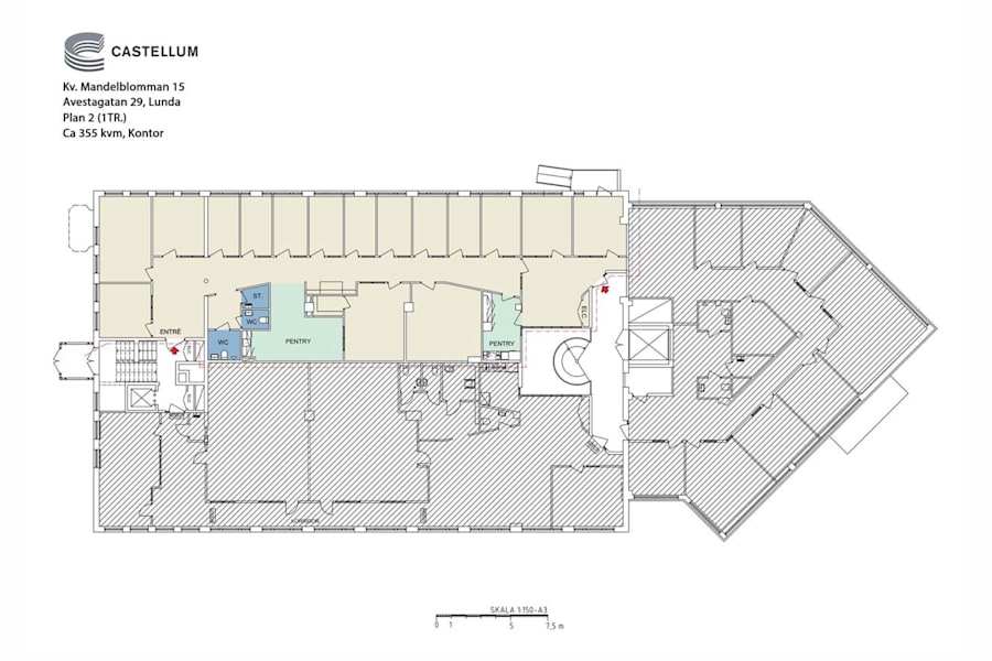
Våningsplan: 4
Omgivning
Omgivning/natur: Lunda är placerat i nordvästra Stockholm, mellan Barkarby och Spånga. Området har en blandning av bostäder, kontor, logistikfastigheter, samhällsfastigheter såsom utbildning, vård- och omsorg, service och handel. På gångavstånd ligger Spånga och Barkarby Centrum, med en kort bilfärd tar du dig enkelt både till Veddesta Handel och Barkarby Staden med all tänkbar service & handel, IKEA och ett flertal restauranger. Spånga Sporthall med träningsmöjligheter ligger ett stenkast bort. I närområdet finns även trevliga grönområden.
Parkeringsmöjligheter/garage: Parkeringsplatser finns att hyra intill fastigheten och i området.
Kommunikationer
an och Bergslagsvägen, ligger i nära anknytning till området, smidigt att ta sig till med fordon. Området kommer att få ett ännu mer attraktivt läge efter att Förbifart Stockholm blir verklighet.