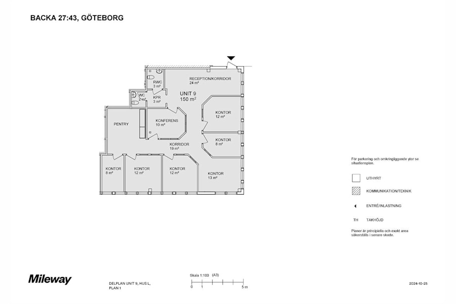
Denna moderna och representativa kontorslokal på 150 kvm är belägen i en trevlig kontors- och lagerbyggnad. Lokalen, som ligger på första våningen (en trappa upp), erbjuder en flexibel planlösning med en kombination av kontorsrum i olika storlekar och mötesrum. Rummen delas till största del av med glaspartier, vilket skapar en ljus och luftig känsla i lokalen. Här finns också bekväma faciliteter som ett pentry/kök, en pausyta, förråd och WC, vilket gör arbetsmiljön både funktionell och trivsam. Fastigheten har ett lättillgängligt läge med fri access till Backa Bergögata, och i direkt anslutning till lokalen finns parkeringsmöjligheter, inklusive elbilsladdning.
Backa är ett populärt industriområde präglat av handel, logistik och tillverkning som ligger strategiskt placerat 7 kilometer norr om centrala Göteborg, i direkt anslutning till E6. Området är beläget i närheten av Stigs Center och endast ett par kilometer från Bäckebol Köpcenter där det finns ett brett serviceutbud av butiker och restauranger att tillgå. Det finns goda kollektivtrafikförbindelser med buss till centrala Göteborg.
Byggår: 1990
Våningsplan: 2 av 2
Planlösning: Se bilder/PDF.
Omgivning
Företag i närheten: Volvo Car, Swedol, Dagab, PostNord, BGM Logistics AB och Budbee
Parkeringsmöjligheter/garage: Parkeringsplatser på fastigheten (med möjlighet till elbilsladdning)
Närservice: Närhet till levande handelsplats kring Stigs Center och Bäckebol Köpcenter med ett brett serviceutbud av butiker, gym och restauranger