Nu finns en välplanerad kombilokal om totalt <strong>458 kvm</strong> att hyra i populära Backa, Göteborg. Lokalen kombinerar praktiska lagerytor med en modern kontorsdel och är idealisk för verksamheter som söker en flexibel och funktionell arbetsyta.
<strong>Lokalbeskrivning</strong>
<strong>Läge och fördelar</strong>
Fastigheten ligger med direkt access till <strong>Backa Bergögata</strong>, i ett av Göteborgs mest attraktiva industriområden. Backa präglas av en mix av handel, logistik och tillverkning och har ett strategiskt läge endast <strong>7 km norr om centrala Göteborg</strong> och i nära anslutning till <strong>E6</strong>.
Området erbjuder närhet till <strong>Stigs Center</strong> och <strong>Bäckebol Köpcenter</strong>, där du hittar ett brett utbud av service, butiker och restauranger. Goda kommunikationsmöjligheter finns också via buss, som enkelt tar dig till centrala Göteborg och kringliggande områden.
Denna lokal erbjuder både funktion och flexibilitet, med möjlighet till <strong>snabb inflyttning</strong>. Perfekt för företag som söker en lösning som kombinerar lager och kontor i ett attraktivt och lättillgängligt läge.
<strong>Kontakta oss för mer information eller för att boka en visning!</strong>
Byggår: 1990
Våningsplan: 1 av 2
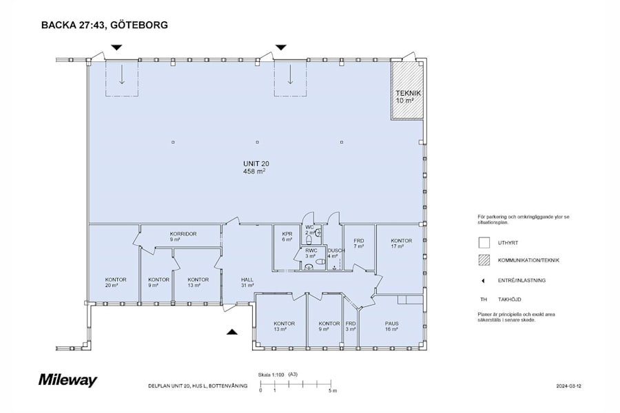
Planlösning: Se bilder/PDF.
Omgivning
Företag i närheten: Volvo Car, Swedol, Dagab, PostNord, BGM Logistics AB och Budbee
Parkeringsmöjligheter/garage: Fri parkering
Närservice: Närhet till levande handelsplats kring Stigs Center och Bäckebol Köpcenter med ett brett serviceutbud av butiker, gym och restauranger