Kombilokal om 220 kvm i en fräsch och välskött byggnad i Backa industriområde, cirka 7 minuter norr om centrala Göteborg med direkt anslutning till E6. Lokalen kombinerar moderna kontorsytor med praktisk lageryta.
Lokalen erbjuder en flexibel planlösning med kontorsrum i varierande storlek, konferensrum samt pentry/kök, pausyta, förråd och WC – allt i mycket gott skick. Den ljusa och öppna miljön lämpar sig väl för både kontorsverksamhet, showroom eller kundmottagning.
Lagerytan nås via markport och har en takhöjd på 2,8–3,5 meter. Här finns fiber, 63A elkapacitet och två 3-fasuttag, vilket ger goda förutsättningar för olika typer av verksamheter. Fri parkering med möjlighet till elbilsladdning finns direkt utanför byggnaden.
Området: Backa är ett väletablerat industri- och handelsområde med starkt skyltläge mot E6. Här finns ett brett serviceutbud i närliggande Stigs Center och Bäckebol Köpcenter med butiker, restauranger och service. Området har dessutom goda kollektivtrafikförbindelser till centrala Göteborg.
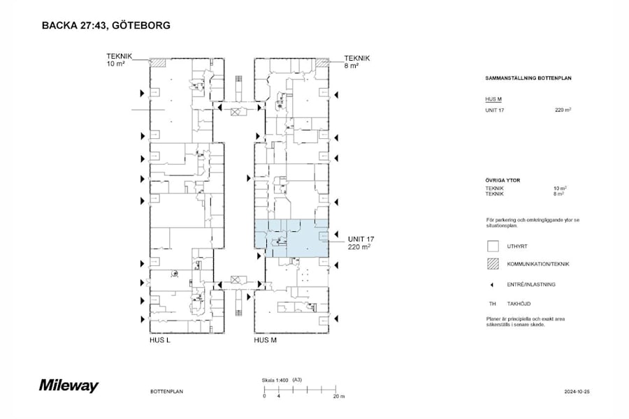
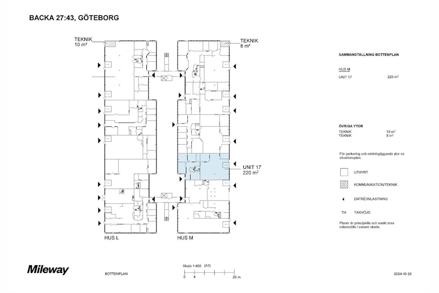
Ytor/Planlösning
Se bilder/PDF.
Ekonomi
Kontraktlängd: Förhandlingsbart
Kontrakttyp: Förstahandskontrakt
Tillträde: Enligt överenskommelse
Utförande
Fastighetsbeteckning: Backa 27:43
Byggår: 1990
Renoveringsår: 2008
Våningsplan: 1
Takhöjd: 3,5 m
Omgivning
Företag i närheten: Volvo Car, Swedol, Dagab, PostNord, BGM Logistics AB och Budbee