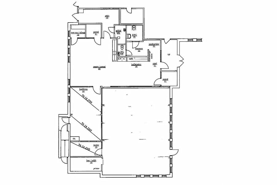
Kontoret är 285 kvm och har bra standard. Möjlighet till anpassning av planlösning finns vid behov.
Möjlighet finns att hyra till lager/produktionsytor.
Näringen är ett expansivt industriområde med många småföretag, men även logistiska och tillverkande företag. Området ligger endast 2 km från Gävle centrum, intill Hamnleden som ansluter till Gävle Hamn från närliggande E4:an.
Ytor/Planlösning
Öppen eller rumsindelad
Övrig information
Fastpartner är ett börsnoterat fastighetsbolag som äger och förvaltar fastigheter långsiktigt med egen personal. Vår affärsidé är att skapa goda och långvariga relationer med våra hyresgäster genom att vara lyhörda för våra hyresgästers önskemål samt engagerade i förvaltningen och utvecklingen av våra fastigheter. Vårt fastighetsbestånd är koncentrerat till Stockholm, men vi har också lokaler på ett flertal expansiva orter i Sverige, bla Göteborg, Malmö, Norrköping, Uppsala och Gävle. Vi tycker det är kul att arbeta med den tekniska utvecklingen av våra fastigheter. Vi ser att det både finns en vinning för miljön och plånboken i att vara en engagerad hyresvärd. Vår organisation genomsyras av en entreprenörsanda och har korta beslutsvägar vilket uppskattas av våra hyresgäster. Välkommen till Fastpartner!
Omgivning
Fastigheten är belägen i Näringens industriområde, ca 2 km nordöst om Gävles mest centrala delar.
Kommunikationer
Industriområdet har bra anslutning till E4: an via Hamnleden, avståndet till E4:an är ca 4,5 km.