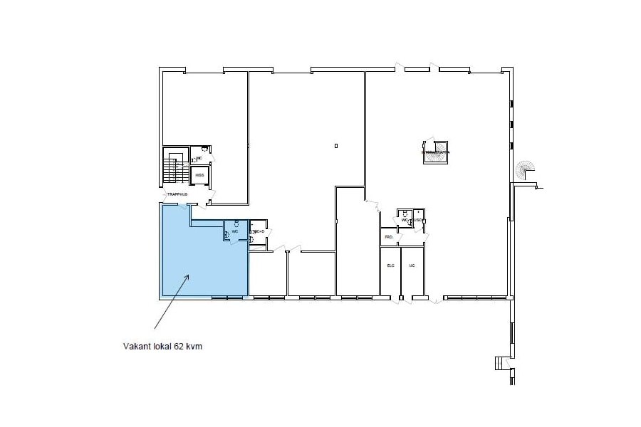
Nu finns en flexibel och lättillgänglig lokal på ca 62 kvm i markplan – idealisk för städfirmor, hantverkare eller som förråd. Här får du en rymlig och öppen yta med pentry och RWC, perfekt anpassad för både arbete och förvaring.
Strategiskt läge i Bredden
Bredden, tidigare känt som InfraCity, är ett attraktivt företagsområde med strategisk placering mellan Stockholm och Arlanda.
Området
Bredden är en modern och flexibel företagspark med verksamheter inom lättindustri, lager och handel. Här finns ett brett serviceutbud med restauranger, butiker och annan företagsservice, vilket gör området optimalt för företag som vill ha allt nära till hands.
Misssa inte chansen att hyra denna mångsidiga lokal! Kontakta oss idag för en visning.
Byggår: 1986
Planlösning: Se planritning bland bilder/PDF.
Omgivning
Omgivning/natur: Flera grönområden finns för exempelvis en lunchpromenad eller löptur. Det planeras för ett bostadsområde i närheten, vilket kommer att göra området ännu mer levande med service dygnet runt.
Företag i närheten: Bauhaus, SATS, Tesla, Swedbank, Lambertsson, Cramo, Mekonomen
Parkeringsmöjligheter/garage: Gott om parkeringsplatser finns på fastigheten
Närservice: Brett serviceutbud i form av köpcenter, restauranger, matbutiker, gym, företagshälsovård, tandläkare, apotek, butiker, hotell etc.
Skyltläge: Det tillgängliga läget bredvid E4:an gör det inte bara lättåtkomligt, utan ger också en hög synlighet och ett fantastiskt skyltläge. Som företag är Bredden därför en utmärkt plats att etablera sig på.