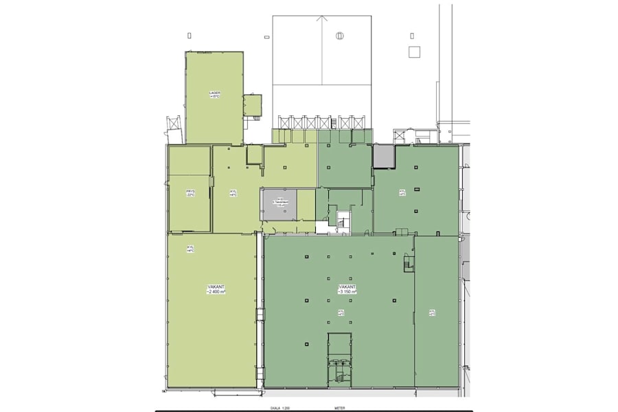
På Billesholmsvägen erbjuds denna lager och produktionlokal om 5700kvm. Här finns stora och öppna ytor för produktion och lager. Utlastning med lastkajer och port finns.
Kyl och fryslager finns.
Tillhörande lokalen erbjuds ett stort kontor samt personalyta med omklädningsrum, pentry/matsal och paus.
Övrig information
Croisette Real Estate Partner har erhållit förmedlingsuppdrag avseende lokalen som beskrivs i detta informationshäfte. Informationen är till största del inhämtad från Fastighetsägaren och eller Hyresgästen. Croisette AB och dess dotterbolag (”Croisette”) ansvarar inte för riktigheten i informationen. All information som är av relevans skall kontrolleras av en eventuell hyresgäst och varken Fastighetsägaren, Hyresgästen eller Croisette kan hållas ansvarig vid felaktigheter i detta informationshäfte.
Ekonomi
Tillträde: Efter överenskommelse
Omgivning
Företag i närheten: Selleberga Bageri. East Asian Food AB, Hello Fresh, Utetjänst i Sverige AB
Parkeringsmöjligheter/garage: På fastigheten finns bra parkeringsmöjligheter för anställda, besökare och kunder.