Nu finns möjligheten att etablera ert företag i en helt unik naturskön miljö. På anrika Firskartorpet erbjuds ett eget representativt hus om 425 kvm där modern design möter Nationalstadsparkens rofyllda natur – endast 3 kilometer från Stureplan och city.
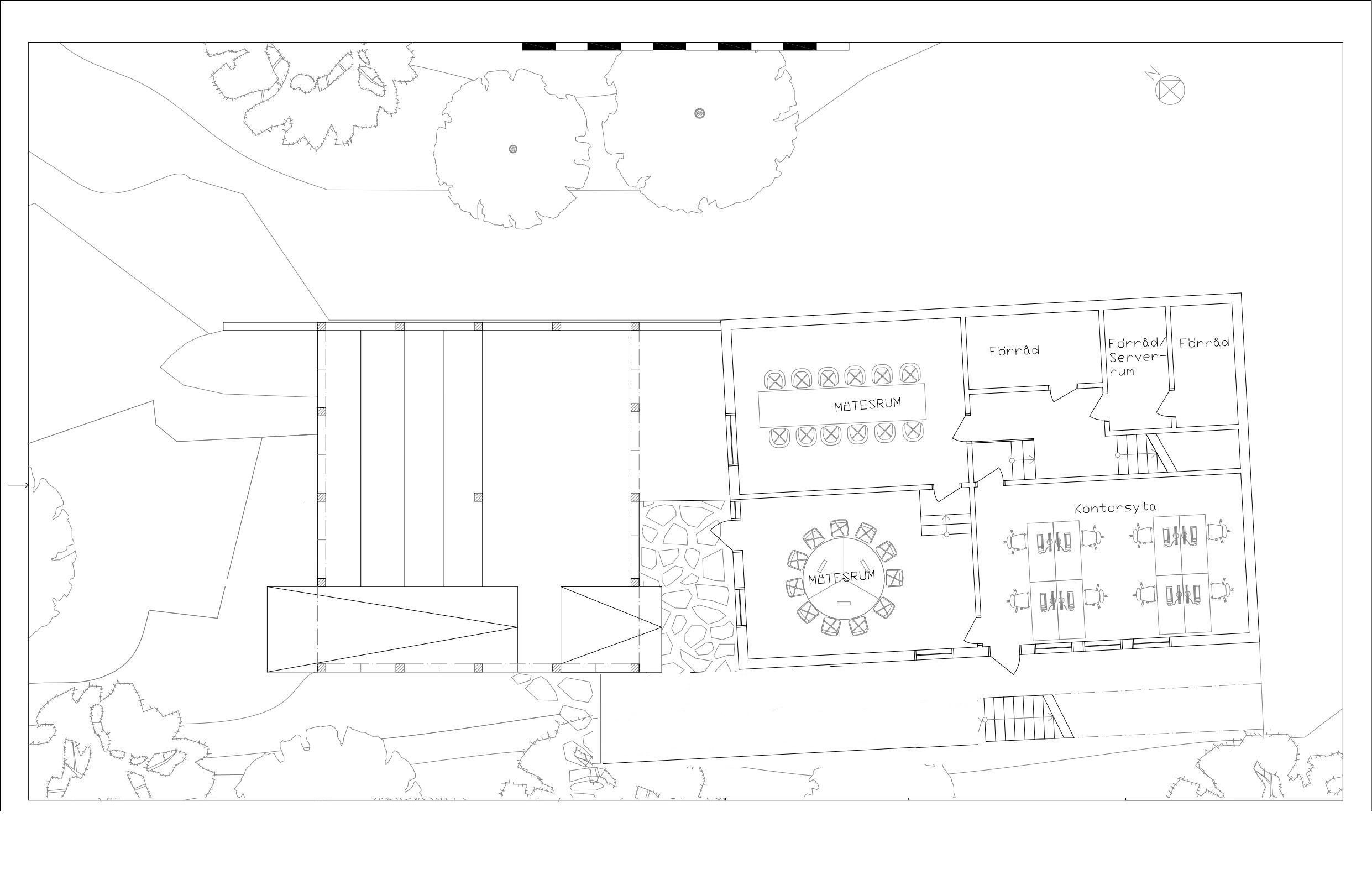
Detta är kontoret för verksamheten som inte nöjer sig med en standardlösning. Här arbetar ni i en modern fastighet, präglad av stora fönsterpartier som suddar ut gränsen mellan inne och ute, exklusiva materialval i trä, glas och stål, samt en fungerande braskamin som sätter guldkant på arbetsdagen. Huset lämpar sig för exempelvis kontor, showroom, någon typ av utbildning eller rekreationscenter.
• Unikt läge: Kontorsyta mitt i Nationalstadsparken invid Laduviken, men nära stadslivets puls.
• Eget hus: Total kontroll och identitet med inhägnat område och övervakning.
• Exklusiv interiör: Modern stil, högt i tak, panoramafönster, braskamin och bastu.
• Kreativa zoner: Spännande utomhusrum i suterrängplan anpassat för filmvisning eller föredrag.
• Tillgänglighet: Goda parkeringsmöjligheter och smidig access till city.
En arbetsplats som andas livskvalitet Lokalen är fördelad på två plan med en genomtänkt planlösning. Entréplanet imponerar med stora öppna ytor, generös takhöjd och panoramafönster som släpper in ljuset och grönskan. Här finns plats för både effektivt arbete och representation. I suterrängplanet finner ni ytterligare kontorsytor samt fastighetens unika utomhusrum – perfekt för dragningar, kreativa workshops eller filmvisning i det fria.
Omgivning
Att kunna ta en lunchpromenad runt Laduviken eller ett träningspass i de berömda spåren vid Fiskartorpet är förmåner som ingår i adressen.
Björnnäsbacken 15 erbjuder det bästa av två världar: naturens lugn och stadens närhet. Ni sitter strategiskt placerade med endast ca 3 kilometer in till Stureplans affärsliv och 45 minuter till Arlanda. För den som pendlar finns mycket goda parkeringsmöjligheter direkt vid fastigheten. Omklädningsrum med bastu finns också i huset. Kollektivt trafikerar busslinje 6 närområdet, vilket ger smidig anslutning till det övriga trafiknätet och city.