Grimsholm Products AB uppför nu en ny, modern lager- och logistikbyggnad i Falkenberg.
Upp till ca 12 000 m² yta är tillgänglig för externa hyresgäster med möjlighet till flexibla lösningar avseende både yta och hyresperiod. Lagerytorna är utformade för effektiv varuhantering och logistik, och erbjuder kombination av markportar samt lastkajer (dockningsportar). Detta ger god tillgänglighet och effektiva flöden för både in- och utleveranser.
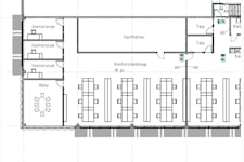
I anslutning till lagerytorna finns även möjlighet att hyra kontor/kontorsplatser vilka kan disponeras i kombination med lager för en sammanhållen verksamhetslösning.
Fakta
Lageryta: ca 12.000 m2 med ca 14 m fri lagringshöjd
Kontorsyta: ca 21 st kontorsplatser. Kontorslokalerna anpassas med egen ingång, pentry samt wc.Skissen som är bifogad kommer alltså arbetas om och utformas efter era behov.
Byggår: 2026
Omgivning
Företag i närheten: Biltema, McDonalds, Engelsons, Preconal, Hydraulcenter AGEs, One Nordic
Närservice: Eftersom fastigheten är belägen precis vid avfarten till E6 ligger det en bensinstation med laddstationer, flertalet snabbmatsrestauranger och vanliga restauranger i området.
Skyltläge: Otroligt skyltläge mot E6