Denna flexibla lokal om 681 kvm erbjuder utmärkta möjligheter för lager, produktion eller lätt industri. Lokalen kan skräddarsys med kontor och pentry, och för den växande verksamheten finns möjlighet att utöka lagerytan med upp till 1 500 kvm i källarplan – med hiss direkt från lokalen för effektiv logistik.
Lokalens höjdpunkter
Godkänd för livsmedelsproduktion
Takhöjd på 4–5,5 meter – ger god flexibilitet för både produktion och lager
Stark elkapacitet med 200A – anpassad för maskiner och krävande utrustning
Lastkaj med port för smidig in- och urlastning
Möjlighet till LED-konvertering inför inflyttning
Generösa parkeringsmöjligheter i direkt anslutning till lokalen
Inhägnat område med kodlås – enkelt för chaufförer att ta sig in och ut
Bevakad fastighet för ökad trygghet
Flexibilitet och tillägg
Lokalen kan anpassas efter verksamhetens behov – med möjlighet att bygga till kontor, personalutrymmen eller kök/pentry. Dessutom kan lagerytan utökas med upp till 1 500 kvm i källarplan, med hissförbindelse direkt från lokalen för smidig logistik.
Strategiskt och lättillgängligt läge i Östra Hamnen
Östra Hamnen är ett utbrett och väletablerat industriområde på centralt läge vid stadens norra infartsleder, endast 3 kilometer norr om centrala Malmö. Här finns goda transportförbindelser via Västkustvägen vidare till Inre Ringvägen, E6/E20 och E22. Området präglas av lättindustri samt lager- och logistikverksamheter och det erbjuds ett enklare serviceutbud av handel och lunchrestauranger. Det finns goda kollektivtrafikförbindelser med buss till centrala Malmö.
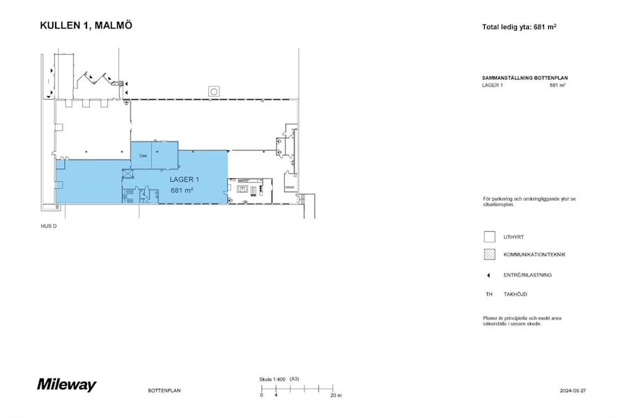
Ytor/Planlösning
Se planritning bland bilder eller ladda ned PDF.
Ekonomi
Kontraktlängd: Förhandlingsbart
Kontrakttyp: Förstahandskontrakt
Tillträde: Omgående
Utförande
Fastighetsbeteckning: Kullen 1
Byggår: 1962
Våningsplan: 1 av 2
Takhöjd: 5 m
Omgivning
Företag i närheten: PostNord, Mechanum, INR Försäljning Sverige AB, Cargobike of Sweden, Exakta Print AB och Bring
Parkeringsmöjligheter/garage: Parkering finns i anslutning till lokalen
Vägbeskrivning: Direkt anslutning till Västkustvägen som leder till Inre Ringvägen, E6/E20 och E22