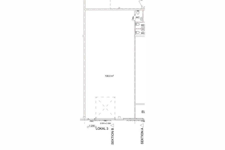
Välkommen till en nyrenoverad lokal om 130 kvm på Bristagatan 16C i Arlandastad ett utmärkt val för dig som söker en praktisk yta för lager, lättare produktion eller verkstadsverksamhet.
Lokalen har en generös takhöjd om ca 5 till 5,9 meter och är utrustad med en port om ca 3,3 meter, vilket ger god tillgänglighet för in- och utlastning.
Lokalen har en enkel standard med WC och lämpar sig väl för verksamheter som prioriterar funktionella ytor i ett lättillgängligt läge. Fastigheten ligger i det expansiva företagsområdet Arlandastad, med närhet till E4:an, Märsta och Arlanda flygplats.
Parkering finns att hyra i direkt anslutning till lokalen.
Välkommen att boka en visning!
Ytor/Planlösning
Öppen eller rumsindelat
Övrig information
FastPartner arbetar långsiktigt med att äga och förvalta fastigheter i Sveriges mest expansiva regioner. Vi är sedan 1994 noterade på Nasdaqs MidCap-lista och förvaltar idag mer än 1,2 miljoner kvadratmeter lokalyta. Vår ambition är att vara en smidig och effektiv partner för företag som vill utveckla sin verksamhet.
Bekvämligheter
I området och i Märsta Centrum
Omgivning
Centralt belägen fastighet i verksamhetsområdet.
Kommunikationer
Goda kommunikationer till Märsta Centrum och Pendeltåg (Märsta Station), E4 nås på 3 minuter med bil.