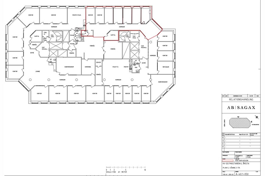
Välkommen till en välplanerad kontorslokal om 135 kvm i populära Årsta!
Lokalen erbjuder en effektiv planlösning med 5 eller 6 kontorsrum samt ett eventuellt mötesrum beroende på hur fördelningen görs. Här finns gott om ljusinsläpp och en trevlig arbetsmiljö som passar både det mindre företaget eller det team som söker en kombination av enskilda rum och gemensamma ytor. Lokalen finner vi på plan 5 i huset.
I lokalen finns även pentry, en wc samt hiss som stannar direkt utanför dörren. Hyresgäster har dessutom tillgång till en gemensam takterrass på plan 10 med utsikt över Stockholm. Det finns även möjlighet att tillhyra förråd om 45 kvm om er verksamhet har behovet.
Området erbjuder goda parkeringsmöjligheter, både inomhus och utomhus, samt närhet till flera lunchrestauranger och service. Parkeringsplatserna kan hyras med eller utan laddningsmöjlighet.
Välkommen att göra en intresseanmälan!
Bekvämligheter
I närheten av Byängsgränd 22 finns flera restauranger och lunchalternativ, bland annat Enskede Värdshus, Restaurang Burspråket och Indus Food Truck. För dagligvaror och övrig service finns flera alternativ i närheten, så som Coop Stamgatan och Årsta Torg.
Omgivning
Årsta erbjuder en växande affärsmiljö med flera kontorslokaler och arbetsutrymmen med närhet till Stockholm city. Området har ett diversifierat näringsliv med etablerade företag som t ex Securitas, PostNord, Dahl, etc. och startups. Området erbjuder även rekreationsmöjligheter i form av Årstafältet och Vårflodsparken.
Kommunikationer
I området finner vi goda allmänna kommunikationer med närhet till tunnelbanans gröna linje (Enskede gård). Bussar trafikerar ifrån knutpunkterna Älvsjö och Gullmarsplan. Det tar ca 5 minuter med buss från Gullmarsplan. För den bilburne ligger Södra länken precis utanför fastigheten och det är även snabb access till Huddingevägen, Nynäsvägen och E4:an.