I ny urban stadsmiljö precis intill Malmö Centralstation erbjuder Foajén lediga ytor som kontor, butiker, showrooms med hög tillgänglighet för alla, bara ett par steg från stationen. I Foajén vid Malmö Centralstation, platsen för människor som vill finnas nära till det mesta i Malmö. Här finns det gott om plats att hämta ny energi, både i huset och i kvarteren runt omkring.
Ytorna är flexibla och kan förändras efter behov och över tid. Det gör att våra hyresgäster kan jobba som de vill i öppna landskap, enskilda rum eller helt aktivitetsbaserat.
Omgivning
Centralare än Malmö Centralstation finns inte!
Goda grannar som Malmö Högskola, Malmö Live och inom några få minuter till fots når du Gamla Väster och Stortorget med hela dess serviceutbud.
Huset ligger i ett mycket attraktiva området som växer och utvecklas där du kan ta en frisk lunchpromenad längs vattnet på tryggt avstånd från bilar. Med tåg når du Triangeln och Möllan på 2 minuter.
Malmöbor och resenärer kommer idag till Malmö Centralstation för att mötas, äta, uträtta ärenden, fika mm. Detta är Malmös framsida!
Med Centralstationens hela utbud av tåg och bussar har man maximal tillgänglighet. Bilen får också plats men allra smidigast för såväl gäster som besökare är att åka kollektivt eller varför inte cykla? Bra för miljön och bra för dig! I Foajéns entréplan finns idag goda grannar som bageri/café, restaurang, butiker och showroom och bredvid ligger Malmö C med mer än 15 café- och restauranger, Coop, Forex, uttagsautomat, Pocketshop, apotek mm. En kort promenad tar dig till Stortorget, Lilla torg och gågatan med citys hela utbud av restauranger, hotell, service och shopping.
Fastighet
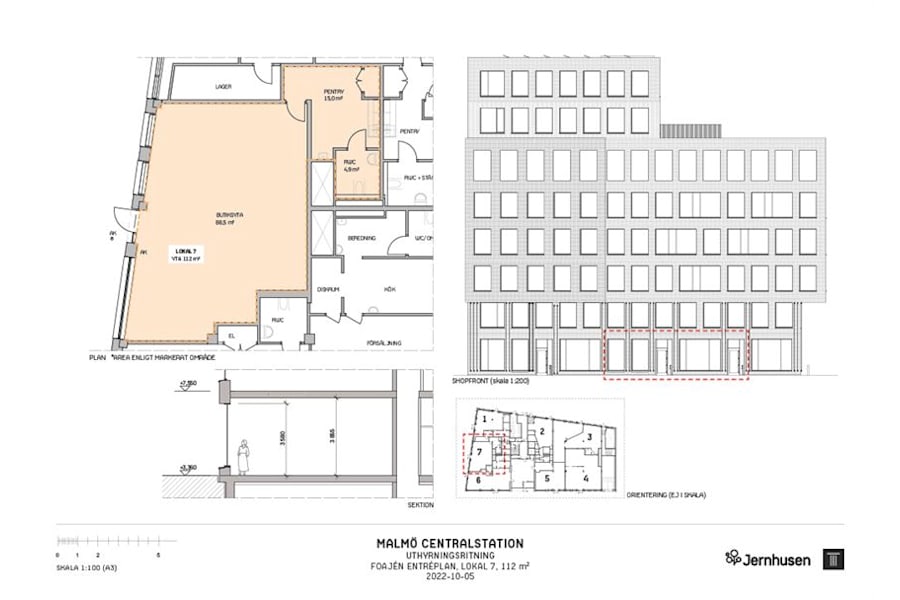
Foajén erbjuder kontor och butiker, bara ett par steg från stationen.
I ny urban stadsmiljö precis vid Malmös Centralstation erbjuder Foajén kontor/butiker/showrooms med hög tillgänglighet för alla.