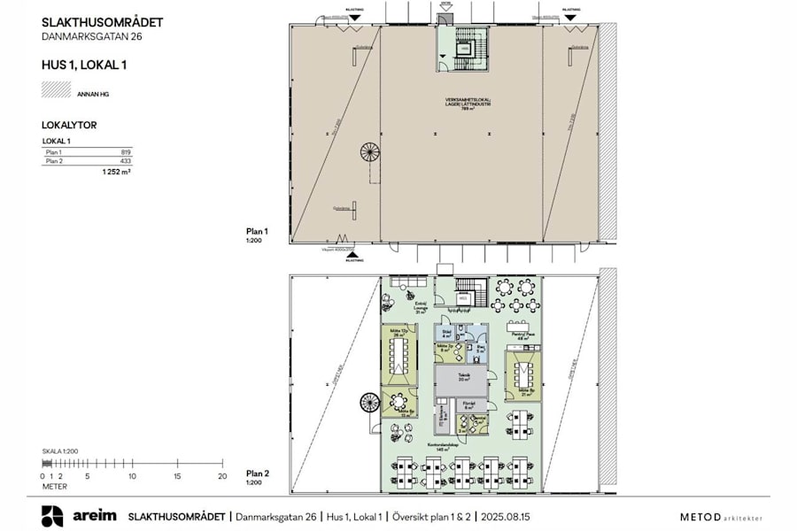
I vårt certifierade hus med solceller i nya Slakthusområdet finns denna lokal i 2 plan samt möjlighet till uppställningsyta och goda rangerytor.
Plan 1: Perfekt för verkstad/lager/produktion med 3 portar med genomkörning, takhöjd om 7,5 m i stort samt oljeavskiljare med ränna.
Plan 2: Kontorsyta med pentry. Kontorsytan går att minska om så önskas.
Omgivning
Omgivning/natur: Hela området omgärdas av cykelvägar och en cykelverkstad kommer att öppnas för våra hyresgäster och flertalet laddstationer för bilar kommer att installeras.
Företag i närheten: Området ligger i direkt anslutning till en större handelsplats med många butiker och IKEA.
Parkeringsmöjligheter/garage: Området har gott om parkeringsplatser och flertalet laddstationer för bilar finns installerade.
Närservice: Här finns bl.a. grönområden och restaurang i området.