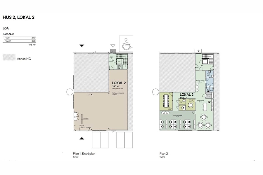
I Hus 2 i nya Slakthusområdet, längs med Verkstadsgatan (se områdesöversikt) finns 478 kvm nyproducerade lokaler med öppen planlösning där vi kan anpassa utformningen efter era behov. Huset har fjärrvärme, FTX ventilation, fjärrkyla och oljeavskiljare.
Här planeras också för nya grönområden, restauranger och gym. Området ligger i direkt anslutning till en större handelsplats med många butiker och IKEA.
Planlösning: I Hus 2 i nya Slakthusområdet finns 478 kvm nyproducerade lokaler med takhöjd om 4,35 m och port som passar såväl laboratorieverksamhet som verkstad/lager. Flexibel inredning som anpassas helt efter era behov.
Omgivning
Omgivning/natur: Hela området omgärdas av cykelvägar och en cykelverkstad kommer att öppnas för våra hyresgäster och flertalet laddstationer för bilar kommer att installeras.
Företag i närheten: Området ligger i direkt anslutning till en större handelsplats med många butiker och IKEA.
Parkeringsmöjligheter/garage: Området har gott om parkeringsplatser och flertalet laddstationer för bilar kommer att installeras.
Närservice: Här planeras också för nya grönområden, restauranger och gym.
Skyltläge: Mycket gott skyltläge längs med Verkstadsgatan.