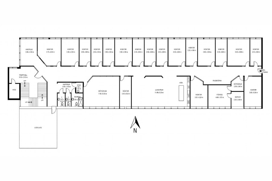
Nu finns möjligheten att hyra ett nyrenoverat kontor i Sijön till en mycket fördelaktig hyresnivå. Lokalen är på 500 kvm med mycket goda ljusinsläpp från två håll.
Lokalen är belägen på tredje våningen högst upp i fastigheten. Hiss finns.
Kontoret erbjuder även en egen terass.
---------------------------------------------------------
English
It is now possible to rent a newly renovated office in Sijön at a very advantageous rental level. The premises is 500 sqm with very good light from two directions.
The room is located on the third floor at the top of the property. Elevator exist.
The office also offers its own terrace.
Planlösning: Rumsindelad.