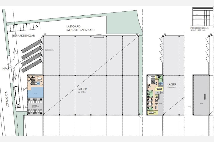
Under Q1 2025 planeras det stå klart nybyggd lager/logistikanläggning om cirka 5000kvm i Flygstaden Kalmar. Utkast på första ritnigen finns bifogat, och är en tidig skiss över hur lokalerna är tänkta att utformas. Slutlig utformning sker i dialog med fastighetsägaren.
Är ni som företag intresserade av att veta mer om projektet tveka inte på att höra av er till oss på Croisette.
Övrig information
Croisette Real Estate Partner har erhållit förmedlingsuppdrag avseende lokalen som beskrivs i detta informationshäfte. Informationen är till största del inhämtad från Fastighetsägaren och eller Hyresgästen. Croisette AB och dess dotterbolag (”Croisette”) ansvarar inte för riktigheten i informationen. All information som är av relevans skall kontrolleras av en eventuell hyresgäst och varken Fastighetsägaren, Hyresgästen eller Croisette kan hållas ansvarig vid felaktigheter i detta informationshäfte.