Logga in
Läs mer
Lediga lokaler
Blekinge län
Karlshamn kommun
1
2
3
Drottninggatan 71A
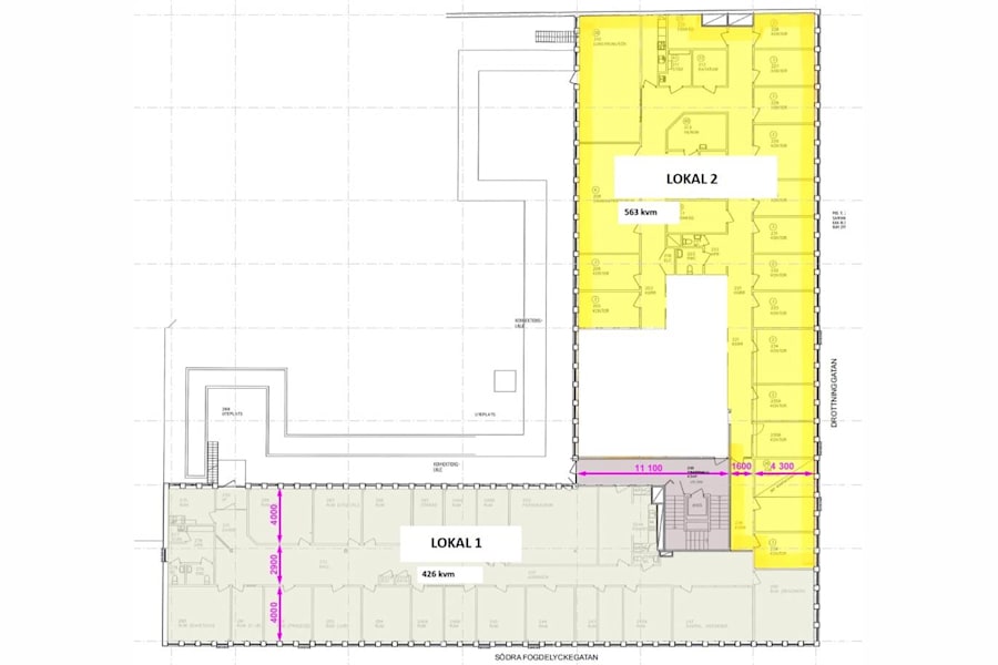
Kontorslokal för ca 20-45 arbetsplatser. Ytan består idag av kontorslokaler som kan slås ihop.
374 38 Karlshamn
Kontor
Storlek
426 - 989 m²
Hyra
Kontakta hyresvärd
Tillträde
Enligt överenskommelse
Beskrivning
Ytan består idag av kontorslokaler som kan slås ihop.:
Lokal 1:
- 15 st rum (vissa för 2-3 pers)
- 2 st mötesrum
- 1+1 Personalrum/kök
- Förråd
- HWC
LOKAL 2:
- 15 st rum (vissa för 2-3 pers)
- 2 st mötesrum
- 1 Personalrum/kök
- 2-4 mötesrum
- Förråd
- HWC
Ytor/Planlösning
Kontor med rumsindelning.
Ekonomi
Kontraktlängd:
Långtidskontrakt
Kontrakttyp:
Förstahandskontrakt
Tillträde:
Enligt ök.
I hyran ingår:
Värme
Utförande
Fastighetsbeteckning:
Gävle 10
Våningsplan:
2 av 3
Omgivning
Företag i närheten:
Systembolaget, m fl
Parkeringsmöjligheter/garage:
Fastigheten har garage
Kontakta
Svenska Handelsfastigheter
Skicka
Visa alla lediga lokaler
Stockholm
Lediga Kontorslokaler i Stockholm
Lediga Co-work i Stockholm
Lediga Lagerlokaler i Stockholm
Lediga Industrilokaler i Stockholm
Göteborg
Lediga Kontorslokaler i Göteborg
Lediga Co-work i Göteborg
Lediga Lagerlokaler i Göteborg
Lediga Industrilokaler i Göteborg
Malmö
Lediga Kontorslokaler i Malmö
Lediga Co-work i Malmö
Lediga Lagerlokaler i Malmö
Lediga Industrilokaler i Malmö
Om
Om oss
Vad är Portally?
Q&A
Kontakt
PortallyPodden
Information
Integritet
Villkor
Cookie Policy
Förmedlingsvillkor
Blogg
Sidkarta
Förnya Cookies
Följ oss
Instagram
Linkedin
Kontakta Svenska Handelsfastigheter