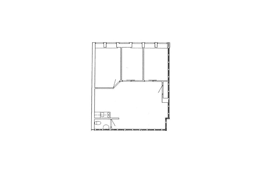
Nu finns en unik chans att hyra en kontorslokal i hjärtat av Stockholm. Lokalen omfattar 63 kvm och erbjuder en flexibel planlösning med tre olika kontorsrum. Här finns även tillgång till pentry samt en toalett. Fastigheten vetter mot Centralbadets entré och innergård, vilket skapar en trevlig och rofylld omgivning mitt i city.
Läget erbjuder ett kort avstånd till T-centralen och Arlanda Express, vilket gör det enkelt att snabbt ta sig både inom staden och till flygplatsen. Härifrån nås ett brett utbud av kollektivtrafik, inklusive tunnelbana, pendeltåg, bussar och fjärrtåg. Sammantaget är detta en perfekt knytpunkt med smidiga förbindelser i alla riktningar.
Varmt välkomna att kontakta oss på Croisette för att ta del av ytterligare information och bokning av visning!
Ekonomi
Kontraktlängd: Förhandlingsbart
Kontrakttyp: Bostadsrättslokal
Tillträde: Enligt överenskommelse.
Omgivning
Omgivning/natur: Drottninggatan 88 ligger i centralt i Stockholm med nära till både stadspuls och grönska. På gångavstånd finns Humlegården med öppna ytor. Kombinationen av centralt läge och närhet till natur gör området både levande och avkopplande.