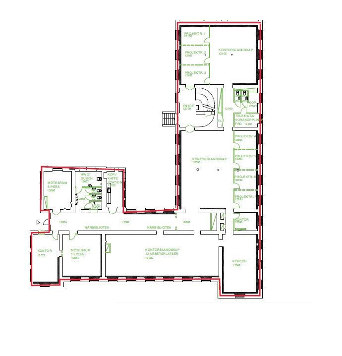
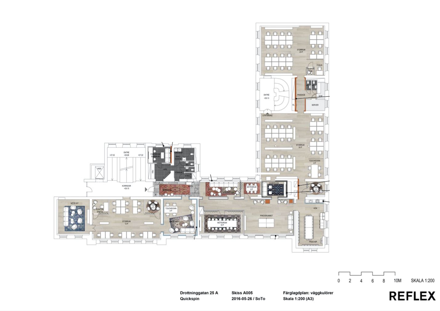
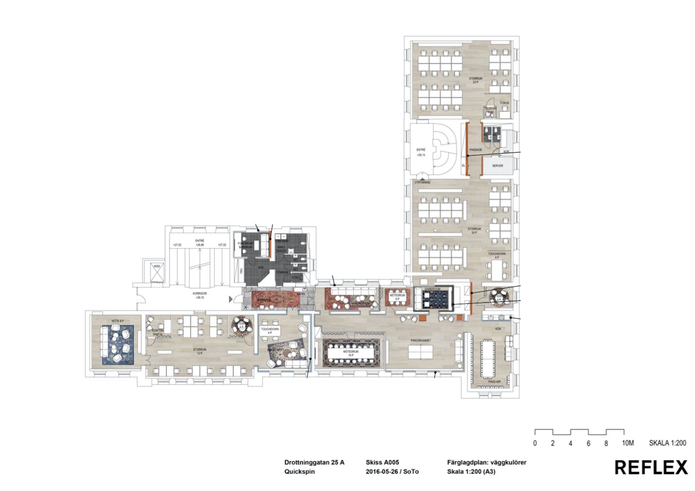
Högt i tak, stora fönster och yteffektivt. Detta drömkontor har en bra blandning av mötesrum, arbetsplatser och plats för stora samlingar. Öppna kontorslandskap med härlig rymd. Några mindre mötesrum/enskilda rum kombinerat med större konferensrum. Två möjliga entréer. Ett mycket trevligt kontor i en anrik fastighet med härlig karaktär. Lokalerna anpassas i samråd med ny hyresgäst.
Övrig information
Trevlig grönska kring fastigheten och lugn gågata utanför porten.
Ekonomi
Kontraktstyp: Första hand Kontraktslängd: 3 år eller längre Uppvärmning: 230 Deposition: 6 månadshyror bankgaranti eller deposition Miljö: 25
Bekvämligheter
Garage: Utomhusparkering samt 2 garage nära, Hiss, Förråd: Tecknas separat, Internet: Ja, stokab finns i källaren, Parkering: Utomhusplatser tecknas separat, Stort utbud av restauranger och kaféer, god service på Drottninggatan och Sveavägen samt kring Odenplan.
Utförande
Byggår: 1894 Renoveringsår: 2008 Antal våningar: 4 Våningsplan: 1 Ventilation: Mekanisk från- och tilluft med kyla.
Kommunikationer
Tunnelbana: Rådmansgatan och Odenplan Buss: Flertalet bussar Spårvagn: Odenplan train: Odenplan Pendeltåg: Odenplan Väg: Du tar dig snabbt ut på lederna