Nu finns möjlighet att hyra en nyproducerad kombilokal om ca 180 kvm i attraktiva Länna handels- och industriområde, med ett strategiskt läge söder om Stockholm och mycket god tillgänglighet. Här får ni en modern och flexibel lokal som passar utmärkt för lager, kontor, showroom, studio, lätt industri eller annan verksamhet med behov av både funktion och representativ miljö.
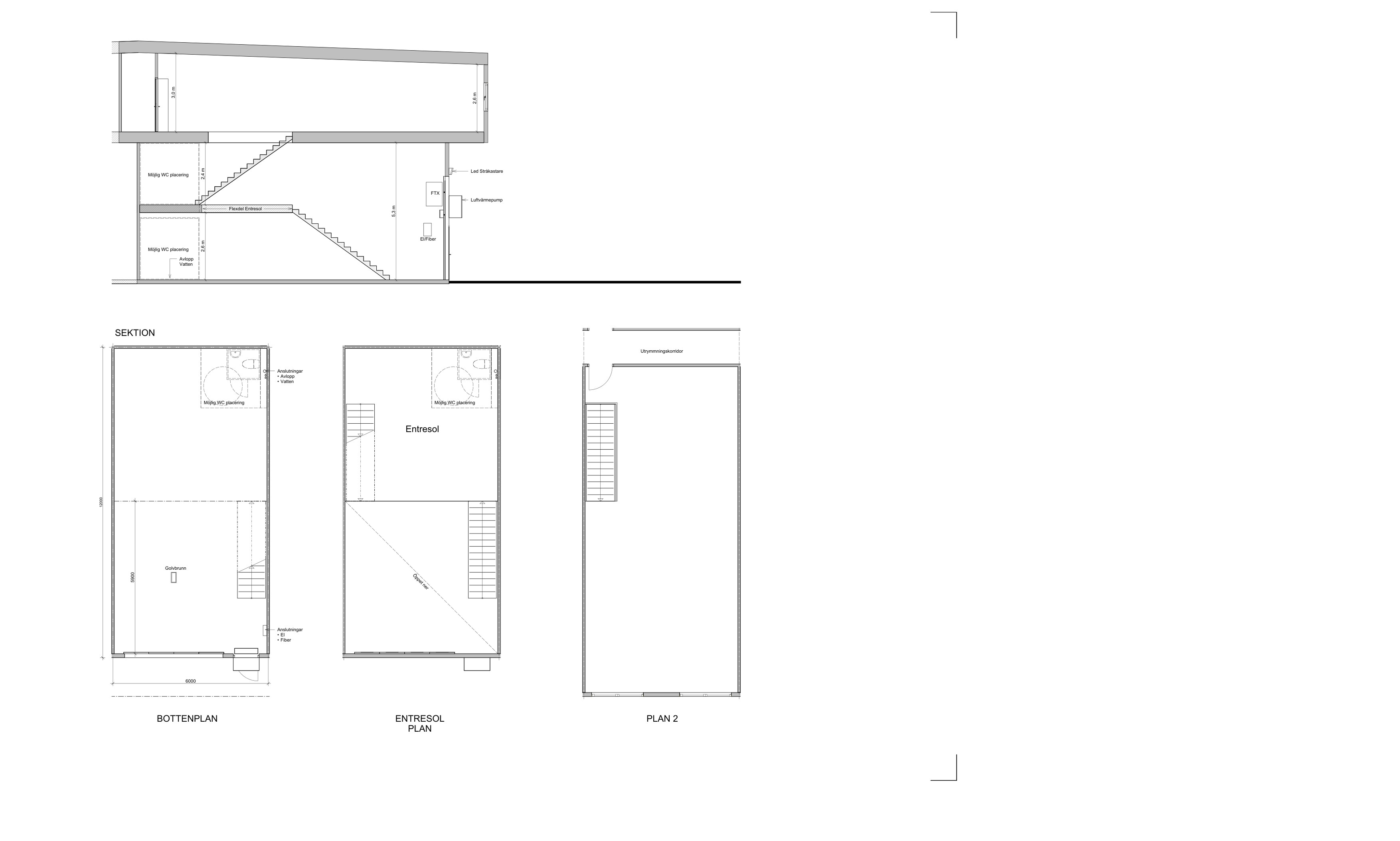
Lokalen är en hörnlokal, vilket ger ett extra fint ljusinsläpp tack vare fler fönster och en mer öppen känsla än många jämförbara lokaler. I lagerdelen erbjuds en invändig takhöjd om ca 5,3 meter, vilket tillsammans med höga portar om ca 4,2 meter skapar mycket goda förutsättningar för lagerhållning, logistik och verksamheter som behöver få in större fordon eller lastbilar.
Planlösningen är flexibel och lokalen kan hyresgästanpassas efter verksamhetens behov. Entresolplanet är ombyggnadsbart, vilket innebär att ytan kan justeras om man önskar mer lagervolym eller bättre anpassning för större fordon. Som första hyresgäst finns också möjlighet att påverka vissa delar av utformningen från start. Placering av toalett kan väljas utan extra kostnad, medan kök kan utföras som tillval enligt överenskommelse.
Till lokalen hör även en egen utezon om ca 30 kvm, vilket ger ytterligare användbar yta för exempelvis upplag, lastning eller annan praktisk användning. Flera parkeringsplatser ingår, och lokalen ligger dessutom i direkt anslutning till hiss, vilket stärker tillgängligheten ytterligare.
Lokalen är belägen i ett modernt och välutrustat område med tydlig fokus på funktion, trygghet och energieffektivitet. Området erbjuder bland annat fiber, LED-belysning, luftvärmepump, FTX-system med värmeåtervinning, smart accessystem, kamerabevakning och säkerhetsklassad dörr. Det gör detta till en mycket attraktiv etablering för företag som vill ha en långsiktigt hållbar och smidig lösning.
Solpaneler i området bidrar dessutom till lägre driftkostnader och en mer hållbar, energieffektiv lösning för hyresgästen.
Upp till 6 månader hyresfritt erbjuds beroende på avtalslängd.
Vi är framför allt måna om att hitta en långsiktig hyresgäst som trivs i lokalen och vill stanna över tid, och är därför öppna för dialog kring upplägg och hyresnivå.
Exempelbilder från liknande lokaler, utformningen av lokalen tas fram i dialog mellan hyresvärd och den tilltänkta hyresgästen.
Omgivning
Läget i Länna är mycket starkt, med närhet till stora butiker, byggvaruhus, restauranger, service, bensinstationer och ett väl etablerat handels och industriområde. Det är ett läge som kombinerar närhet till stan med stark logistisk funktion.