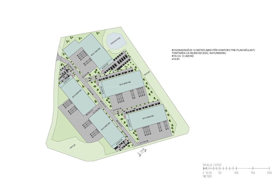
Byggnation om ca 32.000 kvm är möjlig. Tomten är ca 90.000 kvm.
4 min till Europavägen.
Skissen är endast ett exempel. Lokalen utformas efter hyregästens önskemål.
Övrigt:
Någon minut bort längs med väg 110 etablerar sig Frigoscandia med sitt nya huvudkontor och kyl/fryslager om 36.000 kvm.
Övrig information
Croisette Real Estate Partner har erhållit förmedlingsuppdrag avseende lokalen som beskrivs i detta informationshäfte. Informationen är till största del inhämtad från Fastighetsägaren och eller Hyresgästen. Croisette AB och dess dotterbolag (”Croisette”) ansvarar inte för riktigheten i informationen. All information som är av relevans skall kontrolleras av en eventuell hyresgäst och varken Fastighetsägaren, Hyresgästen eller Croisette kan hållas ansvarig vid felaktigheter i detta informationshäfte.