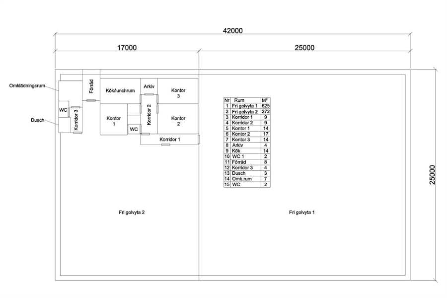
Ta chansen att etablera ert företag i en rymlig och strategiskt belägen lokal på Ekenäsgatan 10 i Ystad. Med en total yta om 1004 kvm, generösa uppställningsytor och en imponerande takhöjd i höglagret, erbjuder denna lokal utmärkta förutsättningar för lager, logistik eller produktion. Det finns möjlighet att endast hyra ca 600 kvm av lagerytan.
Läget i Ystad ger smidig access till både stadens centrum och viktiga transportleder, vilket underlättar distribution och affärsverksamhet. Lokalen är utrustad med markport för enkel in- och utlastning samt har bekvämligheter såsom pentry, toalett och dusch. Tillträde kan ske omgående, vilket gör det möjligt att snabbt komma igång med verksamheten. Fastigheten är inhägnad med gott om uppställningsyta.
Ystad är en växande stad med starkt näringsliv och goda kommunikationer, perfekt för företag som vill expandera eller etablera sig i södra Sverige.
Kontakta Fredrik för en visning och mer information.
Övrig information
Croisette Real Estate Partner har erhållit förmedlingsuppdrag avseende lokalen som beskrivs i detta informationshäfte. Informationen är till största del inhämtad från Fastighetsägaren och eller Hyresgästen. Croisette AB och dess dotterbolag (”Croisette”) ansvarar inte för riktigheten i informationen. All information som är av relevans skall kontrolleras av en eventuell hyresgäst och varken Fastighetsägaren, Hyresgästen eller Croisette kan hållas ansvarig vid felaktigheter i detta informationshäfte.
Ekonomi
Tillträde: Efter överenskommelse
Utförande
Byggår: 1984
Uppvärmning: Luftvärmepump/eldrivna aerotemprar
Omgivning
Omgivning/natur: Havsnära läge med grönska och natur i närheten.
Företag i närheten: Preem, PMH International AB, BLS Industries AB, Tankmobil AB, WME Mechanics AB, Dortek AB
Parkeringsmöjligheter/garage: Finns på fastigheten.