Behöver ni flera stora portar och högt i tak och dessutom stora asfalterade utomhusytor? Då kan denna lokal passa er. Lokalen har ca 8-9 meter i takhöjd och stora portar skall installeras i de ytor som anpassas efter nya hyresgästens behov. Idag är planlösningen öppen och kan lätt anpassas efter tillträdande hyresgäst. Nya rännor är byggda i industri/lagerdelarna. De breda stora elektroniska grindarna och instängslingen gör den stora ytan om ca 5000 kvm attraktiv. Att lokalen dessutom får flera laddstolpar och spolhallar skapar bra förutsättningar för många verksamheter. Fastigheten har ett ypperligt skyltläge utmed leden.
Fastigheten ligger i Västerskogs industriområde i Bålsta som är ett av de större och mer utvecklade industriområdena i Håbo kommun. Det är strategiskt beläget nära E18, vilket ger god tillgänglighet för transporter till och från Stockholm, Uppsala och Västerås. Tack vare sitt läge har området blivit ett populärt nav för företag inom logistik, lagerhantering, och lättare industriell verksamhet. Här finns en blandning av verksamheter, inklusive lager och logistikföretag, entreprenadfirmor, tillverkningsföretag och olika serviceinriktade verksamheter. Området attraherar både lokala företag och företag med regionala och nationella verksamheter. Det ligger mycket nära E18, vilket ger utmärkta transportmöjligheter för tunga fordon och varutransporter. Det finns även god tillgång till andra viktiga transportleder, vilket gör det attraktivt för logistikintensiva företag.
Västerskog har sett tillväxt de senaste åren med fler företagsetableringar och utbyggnationer. Detta är en del av den större expansionen i Bålsta som gynnas av närheten till Stockholm. Förutom goda transportförbindelser finns närhet till service och logistikcenter, vilket gör det bekvämt för företag att etablera sig och driva verksamhet i området.
Sammanfattningsvis är Västerskogs industriområde en attraktiv plats för företag inom logistik och industri, tack vare sitt strategiska läge, goda infrastruktur och möjligheter till tillväxt och expansion.
• Värme luft/luft.
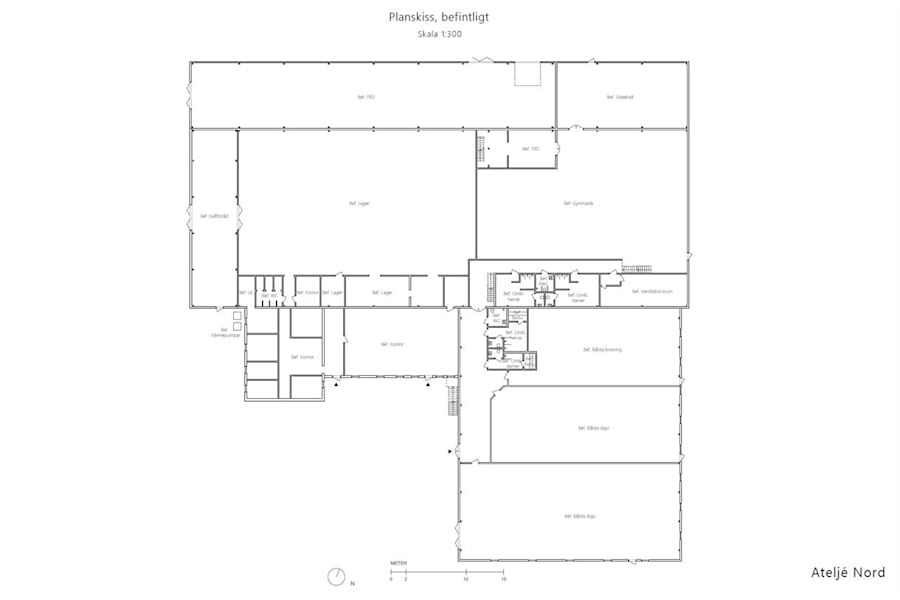
Ytor/Planlösning
Anpassas efter hyresgästens behov.
Ekonomi
Kontraktlängd: Långtidskontrakt
Kontrakttyp: Förstahandskontrakt
Tillträde: Enligt överenskommelse
Utgångshyra kr/m2/år: 1150
I hyran ingår: Skatt
Hyresinformation: Lokalerna anpassas efter hyresgäst och verksamhet.
Utförande
Fastighetsbeteckning: BÅLSTA 3:374
Renoveringsår: 2025
Våningsplan: 1
Takhöjd: 8 m
Ventilation: Mekanisk till- och från luft
Omgivning
Företag i närheten: Benders, Dagab, Christer Nöjd, Renta
Skyltläge: Ja direkt intill leden
Vägbeskrivning: Kör E18 västerut. Vid trafikplats Åsen sväng av. Kör Kraftleden och sväng in till höger på Fabriksvägen.